1e Daalsedijk 228BS
- Type
- Appartement
- Soort
- bovenwoning
- Bouwjaar
- 1910
- Kamers
- 5
- Slaapkamers
- 3
- Woonopp.
- 84 m²
- Energielabel
- B
Licht en sfeervol 4-kamer bovenwoning met royaal dakterras op een toplocatie in de populaire Daalsebuurt, Utrecht.
Op zoek naar een lichte woning met karakter, veel ruimte en een heerlijk dakterras midden in de stad? Dan is dit charmante bovenhuis precies wat je zoekt! Verdeeld over twee verdiepingen vind je onder andere drie slaapkamers, een ruime woonkamer, een open keuken en dat alles op loopafstand van Utrecht Centraal én de Oudegracht. Kortom, deze woning heeft het!
V 4-kamer bovenwoning in de gezellige Daalsebuurt
V Royaal en zonnig dakterras met overkapping en zonnescherm
V Lichte woonkamer met hoge plafonds en grote raampartijen
V Nabij OV, winkels, horeca, scholen en kinderopvang
V Slechts 10 minuten lopen naar Utrecht Centraal en de Oudegracht
V Parkeren in de buurt met vergunning
V Beperkte VvE, MJOP aanwezig en gezamenlijke opstalverzekering
V Energielabel B (geldig tot 2030)
V Oplevering in overleg
V Notaris keuze verkoper
De ligging van dit fijne appartement is ideaal in de Daalsebuurt, dichtbij het centrum van de stad. Deze buurt ligt om de hoek van de Amsterdamsestraatweg en staat bekend om de nette arbeiderswoningen die in de afgelopen jaren steeds vaker zijn opgeknapt en verbouwd tot moderne starterswoningen. Een centrale ligging met winkels voor de dagelijkse boodschappen om de hoek en de Neude op nog geen 10 minuten fietsen. Heb je geen zin om te koken, geen probleem er zijn mogelijkheden genoeg. Ook het station, OV, theater Tivoli Vredenburg en gezellige terrassen zijn allemaal dichtbij. Uitvalswegen zijn ook goed bereikbaar.
INDELING
Begane grond:
Eigen entree op de begane grond met meterkast, garderobe en trapopgang naar de eerste verdieping.
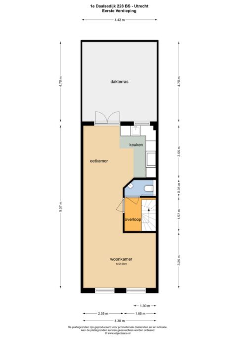
Eerste verdieping:
Via de trap kom je op de overloop waar het separate toilet zich bevindt. Je loopt door naar de voorkant van de woning waar de sfeervolle woonkamer is gelegen. Hier valt meteen op hoeveel licht er binnenkomt door de grote raampartijen aan de voorzijde. De hoge plafonds en de warme houten vloer maken dit tot een prettige en ontspannen ruimte. Lopen we verder naar achteren, dan komen we in de eethoek, waar je met gemak een grote eettafel kwijt kunt. Vanuit hier heb je via dubbele deuren direct toegang tot het ruime dakterras. Aansluitend vind je de open keuken in L-opstelling. Deze is van alle gemakken voorzien een inductiekookplaat, afzuigkap, combi-oven, koelkast, vriezer en een vaatwasser. Alles wat je nodig hebt voor een ontspannen kookavond thuis.
Tweede verdieping:
Via een vaste trap kom je uit op de tweede verdieping. In de hal boven hangt een airco die in de zomer voor heerlijke verkoeling zorgt in het appartement. Vanaf de overloop zijn drie slaapkamers bereikbaar, elk met een nette afwerking en veel natuurlijk daglicht. De grootste slaapkamer ligt aan de voorzijde en biedt genoeg ruimte voor een tweepersoonsbed en een grote kast. De badkamer is voorzien van een inloopdouche, wastafelmeubel met spiegel en een handdoekradiator. Daarnaast is er nog een aparte berging met aansluitingen voor de wasmachine.
Buitenruimte:
Het dakterras aan de achterzijde is een groot pluspunt. Dankzij de overkapping en het uitschuifbare zonnescherm zit je hier altijd goed in de schaduw tijdens warme zomerdagen, of juist droog en beschut als het wat minder weer is. Een ideale plek voor je ochtendkoffie, diner in de buitenlucht of een gezellige borrel met vrienden.
Kortom, dit instapklare appartement met karakter, ruimte en buitenruimte op een toplocatie is absoluut een bezichtiging waard. Zie jij jezelf hier al wonen? Maak dan snel een afspraak met je (NVM) makelaar of vraag een bezichtiging aan via Funda. Er zijn diverse NVM-clausules van toepassing (zie brochure). Gunning aan verkoper. We hebben ons best gedaan om alle info zo scherp en up-to-date mogelijk te presenteren. Fouten zijn nooit uit te sluiten. Check daarom altijd zelf de belangrijke details voordat je een beslissing neemt.
Bright and charming 4-bedroom apartment with a spacious roof terrace in a prime location in the popular Daalsebuurt neighborhood of Utrecht.
Looking for a bright, characterful home with plenty of space and a lovely roof terrace in the heart of the city? Then this charming apartment is exactly what you're looking for! Spread over two floors, you'll find three bedrooms, a spacious living room, an open-plan kitchen, and all within walking distance of Utrecht Central Station and the Oudegracht canal. In short, this apartment has it all!
V 4-room upstairs apartment in the charming Daalsebuurt neighborhood
V Spacious and sunny roof terrace with a canopy and awning
V Bright living room with high ceilings and large windows
V Close to public transport, shops, restaurants, schools, and childcare
V Only a 10-minute walk to Utrecht Central Station and the Oudegracht canal
V Parking nearby with a permit
V Limited homeowners' association (VvE), long-term maintenance plan available, and joint building insurance
V Energy label B (valid until 2030)
V Delivery upon request
V Notary choice of seller
This lovely apartment is ideally located in the Daalsebuurt neighborhood, close to the city center. This neighborhood is just around the corner from Amsterdamsestraatweg and is known for its neat workers' houses, which have increasingly been renovated and converted into modern starter homes in recent years. It's centrally located with shops for daily groceries around the corner and the Neude canal less than a 10-minute bike ride away. Don't feel like cooking? No problem, there are plenty of options. The train station, public transport, Tivoli Vredenburg theater, and charming terraces are all close by. Major roads are also easily accessible.
LAYOUT
Ground floor:
Private entrance on the ground floor with meter cupboard, coat closet, and stairs to the first floor.
First floor:
The stairs lead to the landing where the separate toilet is located. Continue to the front of the house where the cozy living room is located. The large windows at the front of the house immediately catch the eye. The high ceilings and warm wooden floors create a pleasant and relaxing space. Moving further to the rear, we enter the dining area, easily accommodating a large dining table. From here, double doors provide direct access to the spacious roof terrace. Adjacent is the open-plan L-shaped kitchen. It is fully equipped with an induction cooktop, extractor hood, combination oven, refrigerator, freezer, and dishwasher. Everything you need for a relaxing evening cooking at home.
Second floor:
A fixed staircase leads to the second floor. Three bedrooms are accessible from the landing, each with a neat finish and plenty of natural light. The largest bedroom is at the front of the house and offers ample space for a double bed and a large closet. The bathroom features a walk-in shower, a vanity with a mirror, and a heated towel rail. There's also a separate storage room with connections for a washing machine.
Outdoor Space:
The roof terrace at the rear is a major plus. Thanks to the covered area and retractable awning, you'll always find plenty of shade on hot summer days, or dry and sheltered on less favorable days. It's an ideal spot for your morning coffee, al fresco dinner, or a cozy drink with friends.
In short, this move-in ready apartment with character, space, and outdoor area in a prime location is definitely worth a viewing. Can you picture yourself living here? Then quickly schedule an appointment with your (NVM) real estate agent or request a viewing through Funda. Various NVM clauses apply (see brochure). Award to the seller. We've done our best to present all information as clearly and up-to-date as possible. Errors are always possible. Therefore, always check the important details yourself before making a decision.
Kenmerken
Overdracht
- Vraagprijs
- € 525.000,- k.k.
- Status
- Verkocht onder voorbehoud
- Aanvaarding
- in overleg
Bouw
- Type
- Appartement
- Soort
- bovenwoning
- Bouwjaar
- 1910
- Onderhoud binnen
- goed, uitstekend
- Onderhoud buiten
- goed, uitstekend
Tuin
- Type
- zonneterras
- Hoofd tuin
- zonneterras
- Ligging
- zuid, west
- Oppervlakte
- 21 m²
Appartement
- Kamers
- 5
- Slaapkamers
- 3
- Verdiepingen
- 3
- Woonopp.
- 84 m²
- Inhoud
- 294 m³
- Ligging
- aan rustige weg, in centrum, in woonwijk
Energie
- Energie label
- B
- Isolatie
- dakisolatie, dubbel glas, muurisolatie, vloerisolatie
- Verwarming
- c.v.-ketel
Garage
- Type
- geen garage





































