Egelantierstraat 82

3551GE Utrecht
Vraagprijs:
€ 475.000,- k.k.

Type
Woonhuis
Soort
eengezinswoning
Type woonhuis
tussenwoning
Bouwjaar
1919
Kamers
3
Slaapkamers
2
Woonopp.
73 m²
Energielabel
D

Sfeervolle, goed onderhouden tussenwoning uit 1919 met patio én zonnig dakterras in de geliefde Bloemenbuurt.

Op een fijne, rustige plek in de Bloemenbuurt ligt deze charmante driekamer tussenwoning. De woning voelt direct als thuis dankzij de lichte doorzonwoonkamer, twee goede slaapkamers en niet één maar twee buitenruimtes een beschutte patio én een royaal dakterras op het zuidwesten. Kortom, deze woning heeft het!

V 3-kamer woning in de Bloemenbuurt
V Zowel een patio en terras op het zuidwesten
V Ruime woonkamer en keuken
V Praktische indeling over twee woonlagen
V Parkeren via vergunning
V Nabij OV, winkels en horeca
V Slechts 5 minuten fietsen van het centrum
V Energielabel D (tot 2035)
V Oplevering in overleg

De Bloemenbuurt is zo’n buurt waar alles klopt. Koffie en speciaalzaken vind je aan de Amsterdamsestraatweg, borrelen en eten doe je bij restaurant MOOS of De Hondekop en binnen 5 minuten fietsen sta je op het Neude, Vredenburg of aan de Oudegracht. Voor sport en ontspanning loop of ren je zo langs de Vecht, een potje spelen kan bij de Ping Pong Club en voor concerten fiets je naar TivoliVredenburg. Station Zuilen en Utrecht Centraal liggen dichtbij en met de auto ben je zo op de uitvalswegen.

INDELING

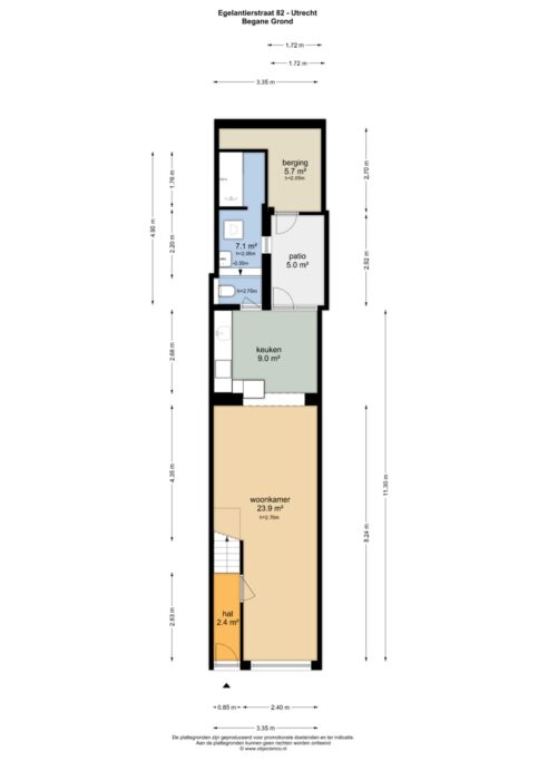
Begane grond:
Via de voordeur kom je binnen in de hal met trapopgang. Vanuit hier loop je door naar de sfeervolle en verrassend ruime doorzonwoonkamer. Het grote raam aan de voorzijde zorgt voor veel lichtinval. De ruimte is speels ingedeeld met aan zowel de voor- als achterzijde plek voor een eettafel en centraal een gezellige zithoek. De zichtbare plafondbalken geven de woonkamer extra karakter en warmte.

Aan de achterzijde bevindt zich de open keuken. Deze is praktisch ingericht en beschikt over veel kastruimte. Vanuit de keuken is er direct toegang tot de badkamer en toilet.
De nette badkamer is voorzien van een ligbad met douche, wastafelmeubel, handdoekradiator, toilet en aansluitingen voor de wasmachine.
Via openslaande deuren in de keuken stap je de beschutte patio in: een heerlijke plek voor een kop koffie in de ochtend of een borrel na het werk. Dankzij de omliggende muren geniet je hier van veel privacy, midden in de stad. Vanuit de patio is de berging bereikbaar, ideaal voor fietsen, gereedschap en extra opslagruimte.

1e verdieping:
De overloop geeft toegang tot twee slaapkamers. Aan de voorzijde ligt de ruime hoofdslaapkamer met grote ramen en voldoende ruimte voor een tweepersoonsbed en kastenwand.
Aan de achterzijde bevindt zich de tweede slaapkamer, perfect te gebruiken als werk-, logeer- of slaapkamer. Vanuit deze kamer heb je directe toegang tot het royale, op het zuidwesten gelegen terras. Hier is volop ruimte voor een comfortabele loungeset en kun je tot in de avond genieten van de zon een heerlijke plek om te ontspannen.

Kortom een charmante en sfeervolle woning met fijne leefruimtes en twee heerlijke buitenplekken, gelegen op een toplocatie in Utrecht. Ideaal voor starters of singles die comfortabel en centraal willen wonen. Zie jij jezelf hier al wonen? Maak dan snel een afspraak met je (NVM) makelaar of vraag een bezichtiging aan via Funda. Er zijn diverse NVM-clausules van toepassing (zie brochure). Gunning aan verkoper.

Charming, well-maintained terraced house from 1919 with a patio and sunny roof terrace in the popular Bloemenbuurt neighborhood.

This charming three-bedroom terraced house is situated in a pleasant, quiet location in the Bloemenbuurt neighborhood. The house immediately feels like home thanks to the bright, open-plan living room, two good-sized bedrooms, and not one but two outdoor spaces: a sheltered patio and a spacious southwest-facing roof terrace. In short, this house has it all!

V Three-bedroom house in the Bloemenbuurt neighborhood
V Both a southwest-facing patio and terrace
V Spacious living room and kitchen
V Practical layout over two floors
V Parking with a permit
V Close to public transport, shops, and restaurants
V Only a 5-minute bike ride from the city center
V Energy label D (until 2035)
V Delivery upon request

The Bloemenbuurt is a neighborhood where everything is just right. Coffee and specialty shops can be found on Amsterdamsestraatweg, while drinks and meals can be enjoyed at restaurant MOOS or De Hondekop. The Neude, Vredenburg, and Oudegracht canals are just a 5-minute bike ride away. For sports and relaxation, you can easily walk or run along the Vecht River, play a game at the Ping Pong Club, and cycle to TivoliVredenburg for concerts. Zuilen and Utrecht Central Stations are close by, and major roads are easily accessible by car.

LAYOUT

Ground floor:
Through the front door, you enter the hall with staircase. From here, you walk into the charming and surprisingly spacious living room. The large window at the front provides plenty of natural light. The space is playfully laid out, with space for a dining table at both the front and back, and a cozy seating area in the center. The exposed ceiling beams add character and warmth to the living room.

At the rear is the open-plan kitchen. It is practically furnished and has ample cupboard space. The kitchen provides direct access to the bathroom and toilet. The neat bathroom features a bathtub with shower, vanity, heated towel rail, toilet, and connections for a washing machine.
Through French doors in the kitchen, you step onto the sheltered patio: a wonderful spot for a morning cup of coffee or an after-work drink. Thanks to the surrounding walls, you can enjoy plenty of privacy here, right in the heart of the city. The storage room is accessible from the patio, ideal for bicycles, tools, and extra storage.

First floor:
The landing provides access to two bedrooms. At the front is the spacious master bedroom with large windows and ample space for a double bed and a wardrobe.
At the rear is the second bedroom, perfect for use as a study, guest room, or bedroom. From this room, you have direct access to the generous, southwest-facing terrace. There's plenty of room for a comfortable lounge set, and you can enjoy the sun until the evening – a wonderful place to relax.

In short, a charming and inviting home with comfortable living spaces and two wonderful outdoor areas, situated in a prime location in Utrecht. Ideal for first-time buyers or singles looking for comfortable, central living. Can you picture yourself living here? Then quickly schedule an appointment with your (NVM) real estate agent or request a viewing through Funda. Various NVM clauses apply (see brochure). Award of contract to the seller.

Kenmerken

Overdracht

Vraagprijs
€ 475.000,- k.k.
Status
beschikbaar
Aanvaarding
in overleg

Bouw

Type
Woonhuis
Soort
eengezinswoning
Type woonhuis
tussenwoning
Bouwjaar
1919
Onderhoud binnen
goed
Onderhoud buiten
goed

Tuin

Type
plaats, zonneterras
Hoofd tuin
zonneterras
Ligging
zuid, west
Oppervlakte
5 m²

Woonhuis

Kamers
3
Slaapkamers
2
Verdiepingen
2
Woonopp.
73 m²
Inhoud
267 m³
Perceelopp.
66 m²
Ligging
aan rustige weg, in woonwijk

Energie

Energie label
D
Isolatie
dakisolatie, dubbel glas, vloerisolatie
Verwarming
c.v.-ketel

Garage

Type
geen garage

Berging

Type
aangebouwd steen
Voorzieningen
voorzien van elektra
Egelantierstraat 82
Egelantierstraat 82
Egelantierstraat 82
Egelantierstraat 82
Egelantierstraat 82
Egelantierstraat 82
Egelantierstraat 82
Egelantierstraat 82
Egelantierstraat 82
Egelantierstraat 82
Egelantierstraat 82
Egelantierstraat 82
Egelantierstraat 82
Egelantierstraat 82
Egelantierstraat 82
Egelantierstraat 82
Egelantierstraat 82
Egelantierstraat 82
Egelantierstraat 82
Egelantierstraat 82
Egelantierstraat 82
Egelantierstraat 82
Egelantierstraat 82
Egelantierstraat 82
Egelantierstraat 82
Egelantierstraat 82
Egelantierstraat 82
Egelantierstraat 82
Egelantierstraat 82
Egelantierstraat 82
Egelantierstraat 82
Egelantierstraat 82
Egelantierstraat 82
Egelantierstraat 82
Egelantierstraat 82
Egelantierstraat 82
Egelantierstraat 82
Egelantierstraat 82
Egelantierstraat 82
Egelantierstraat 82
Egelantierstraat 82