Engelsmanplaat 44
- Type
- Woonhuis
- Soort
- eengezinswoning
- Type woonhuis
- tussenwoning
- Bouwjaar
- 2002
- Kamers
- 4
- Slaapkamers
- 3
- Woonopp.
- 120 m²
- Energielabel
- A
Ruime 4-kamer woning met voortuin én zonnig terras in het groene Lunetten.
Deze verrassend ruime woning is verdeeld over meerdere woonlagen en biedt maar liefst drie slaapkamers, een lichte woonkamer met open keuken, een zonnig terras én een ruime voortuin. Dankzij de unieke indeling voelt de woning ruim en comfortabel aan. Ideaal voor starters, stellen of jonge gezinnen die nét wat meer ruimte zoeken op een centrale locatie in Utrecht. Kortom, deze woning heeft het!
V 4-kamerwoning in Lunetten-Noord
V Voortuin én ruim terras op het zuidwesten
V Lichte woonkamer met open keuken en kookeiland
V Grote multifunctionele kamer van 20m2 geschikt voor royale slaapkamer of praktijk aan huis
V Veel bergruimte (inpandig en extern)
V Gratis parkeren in de straat
V Vlak bij Beatrixpark en Amelisweerd
V Op loopafstand van winkelcentrum en station Lunetten
V Energielabel A
De ligging in het groene Lunetten is heerlijk rustig, met alles dichtbij. In de buurt kan er fijn gewandeld worden langs de groene waterwegen of het Beatrixpark en ook Amelisweerd ligt in de buurt. Winkelcentrum Lunetten ligt om de hoek voor de dagelijkse boodschappen en station Lunetten is op loopafstand. Met de auto zit je bovendien zó op de A12 of A27.
Laat je verrassen door de rust in deze woning. Hoewel het spoor nabij is, merk je daar binnenshuis nagenoeg niets van door de extra isolatie. Ook in de straat is er vrijwel geen verkeer, waardoor je hier heerlijk rustig woont.
Het is hier fijn wonen in een actieve en betrokken buurt. Er worden regelmatig gezellige activiteiten georganiseerd, waardoor je je snel thuis voelt. Voor gezinnen is het een waar paradijs: kinderen kunnen hier nog heerlijk veilig op straat spelen met hun buurtgenootjes. Hier woon je met het beste van stad en natuur binnen handbereik.
INDELING
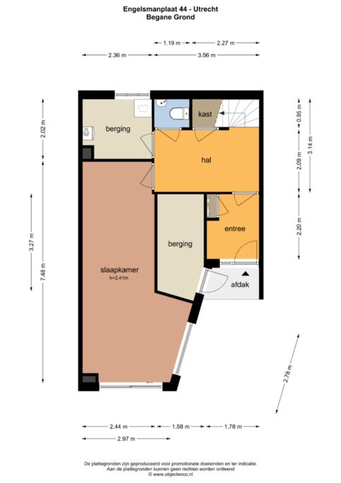
Begane grond:
Via de voortuin bereik je de entree van de woning. Je komt binnen in de entree met toegang tot de hal. In de hal bevinden zich het separate toilet met fonteintje, een praktische trapkast en de trap naar boven. Vanuit de hal bereik je ook een inpandige berging met aansluitingen voor wasmachine en droger en extra bergruimte.
Aan de voorzijde bevindt zich een royale (slaap)kamer over de volle diepte van de woning. Dankzij de grote raampartijen en de schuifpui naar buiten is dit een heerlijke lichte ruimte. Deze multifunctionele kamer van 20 m2 is perfect als hoofdslaapkamer, werkkamer, hobbykamer of als praktijk aan huis.
1e Verdieping:
Op de eerste verdieping kom je op de overloop met toegang tot de lichte en ruime woonkamer. De woonkamer is breed opgezet en beschikt over een luxe houten vloer, grote raampartijen en een schuifpui naar het terras, waardoor er veel daglicht binnenvalt. Er is volop ruimte voor een comfortabele zithoek en een grote eettafel.
Aan de achterzijde bevindt zich de open keuken met kookeiland. De keuken is uitgevoerd in een lichte kleurstelling en beschikt over diverse inbouwapparatuur en voldoende werk- en opbergruimte. Terwijl je kookt blijf je in contact met de woonkamer. Via de schuifpui stap je het ruime terras op. Voorzien van een royaal zonnescherm is dit een fijne plek om buiten te zitten, te borrelen met vrienden of rustig te genieten van de zon.
2e Verdieping:
Via de vaste trap bereik je de tweede verdieping met nog twee goede slaapkamers. De hoofdslaapkamer is breed opgezet met grote raampartijen met vrij uitzicht. De airconditioning en screens zorgen hier voor extra comfort tijdens warme zomerdagen. Een fijne, complete slaapkamer waar je zo in kunt. De tweede slaapkamer ligt eveneens op deze verdieping en is perfect als kinder-, logeer- of werkkamer. De badkamer is voorzien van een ligbad, aparte douche, wastafel, handdoekradiator en tweede toilet. De badkamer is netjes onderhouden, lekker ruim en praktisch ingedeeld.
Voortuin:
Via de schuifpui stap je direct de zonnige voortuin op het zuidwesten in. De tuin is verzorgd ingericht met een combinatie van bestrating, groen en een houten pergola aan de gevel, wat het de ideale plek maakt voor een loungeset of buitentafel. Terwijl de groene hagen zorgen voor de nodige privacy, zit je hier op een heerlijke plek om van het middaguur tot diep in de avond van de zon te genieten.
Naast comfort staat duurzaamheid centraal: De woning is voorzien van zonnepanelen en een slim verwarmingssysteem. Hiermee regel je de temperatuur per kamer afzonderlijk, waardoor je bijvoorbeeld enkel de werkkamer verwarmt; een slimme keuze die direct terug te zien is in een lager gasverbruik.
Kortom, ben je op zoek naar een ruim en praktisch ingedeelde woning met drie slaapkamers, buitenruimte en een centrale ligging in Utrecht? Dan is dit een geweldige kans. Zie jij jezelf hier al wonen? Maak dan snel een afspraak met je (NVM) makelaar of vraag een bezichtiging aan via Funda. Er zijn diverse NVM-clausules van toepassing (zie brochure). Gunning aan verkoper. We hebben ons best gedaan om alle info zo scherp en up-to-date mogelijk te presenteren. Fouten zijn nooit uit te sluiten. Check daarom altijd zelf de belangrijke details voordat je een beslissing neemt.
Spacious 4-room home with front garden and sunny terrace in the green Lunetten district
This surprisingly spacious home is spread over multiple levels and offers three bedrooms, a bright living room with open kitchen, a sunny terrace, and a spacious front garden. Thanks to its unique layout, the house feels roomy and comfortable. Ideal for first-time buyers, couples, or young families looking for a bit more space in a central location in Utrecht. In short, this home has it all!
V 4-room house in Lunetten-Noord
V Front garden and large southwest-facing terrace
V Bright living room with open kitchen and kitchen island
V Large multifunctional room of 20 m² suitable as a spacious bedroom or home office/practice
V Plenty of storage space (internal and external)
V Free parking on the street
V Close to Beatrixpark and Amelisweerd
V Within walking distance of Lunetten shopping center and Lunetten station
V Energy label A
The location in the green Lunetten area is wonderfully peaceful, with everything close by. The neighborhood offers great opportunities for walking along the green waterways or in Beatrixpark, and Amelisweerd is also nearby. Lunetten shopping center is just around the corner for daily groceries, and Lunetten station is within walking distance. By car, you can reach the A12 or A27 in no time.
Be pleasantly surprised by the tranquility of this home. Although the railway is nearby, you will hardly notice it indoors thanks to the additional insulation. Traffic in the street is also minimal, allowing you to enjoy a very quiet living environment.
This is a pleasant place to live in an active and engaged neighborhood. Regular social activities are organized, making it easy to feel at home. For families, it is an ideal environment: children can still safely play outside in the street with neighborhood friends. Here you enjoy the best of both city life and nature within easy reach.
LAYOUT
Ground floor:
Through the front garden you reach the entrance of the home. You enter into the hallway with access to the main hall. Here you will find a separate toilet with washbasin, a practical storage cupboard under the stairs, and the staircase to the upper floors. From the hall you can also access an internal storage room with connections for a washing machine and dryer and additional storage space.
At the front of the house there is a spacious (bed)room that extends across the full depth of the property. Thanks to the large windows and the sliding doors to the outside, this is a wonderfully bright space. This multifunctional 20 m² room is perfect as a master bedroom, home office, hobby room, or a practice space at home.
First floor:
On the first floor you arrive at the landing with access to the bright and spacious living room. The living room is generously laid out and features a luxurious wooden floor, large windows, and sliding doors to the terrace, allowing plenty of natural daylight to enter. There is ample space for a comfortable seating area and a large dining table.
At the rear you will find the open kitchen with kitchen island. The kitchen is finished in a light color scheme and includes various built-in appliances as well as plenty of work and storage space. While cooking, you remain connected with the living area. Through the sliding doors you step onto the spacious terrace. Equipped with a large sunshade, it is a perfect place to sit outside, enjoy drinks with friends, or relax in the sun.
Second floor:
Via the fixed staircase you reach the second floor with two more well-sized bedrooms. The master bedroom is wide and bright with large windows and open views. Air conditioning and window screens provide extra comfort during warm summer days. A comfortable and ready-to-move-in bedroom.
The second bedroom is also located on this floor and is perfect as a child’s room, guest room, or office. The bathroom features a bathtub, separate shower, washbasin, towel radiator, and a second toilet. It is well maintained, spacious, and practically laid out.
Front garden:
Through the sliding doors you step directly into the sunny southwest-facing front garden. The garden is neatly designed with a combination of paving, greenery, and a wooden pergola attached to the façade, making it an ideal place for a lounge set or outdoor dining table. The green hedges provide privacy while you enjoy the sun from midday until late in the evening.
In addition to comfort, sustainability plays an important role. The house is equipped with solar panels and a smart heating system that allows you to control the temperature per room individually. For example, you can choose to heat only your workspace—an efficient solution that directly reduces gas consumption.
In short, are you looking for a spacious and practically designed home with three bedrooms, outdoor space, and a central location in Utrecht? Then this is a great opportunity. Can you already picture yourself living here? Contact your (NVM) real estate agent to schedule a viewing or request one via Funda.
Several NVM clauses apply (see brochure). Awarding is subject to the seller’s approval. We have done our best to present all information as accurately and up to date as possible. However, errors cannot always be ruled out. Always verify important details yourself before making a decision.
Kenmerken
Overdracht
- Vraagprijs
- € 575.000,- k.k.
- Status
- Verkocht onder voorbehoud
- Aanvaarding
- in overleg
Bouw
- Type
- Woonhuis
- Soort
- eengezinswoning
- Type woonhuis
- tussenwoning
- Bouwjaar
- 2002
- Onderhoud binnen
- goed
- Onderhoud buiten
- goed
Tuin
- Type
- voortuin
- Hoofd tuin
- voortuin
- Ligging
- zuid, west
- Oppervlakte
- 51 m²
Woonhuis
- Kamers
- 4
- Slaapkamers
- 3
- Verdiepingen
- 3
- Woonopp.
- 120 m²
- Inhoud
- 411 m³
- Perceelopp.
- 107 m²
- Ligging
- aan rustige weg, in woonwijk, vrij uitzicht
Energie
- Energie label
- A
- Isolatie
- dakisolatie, dubbel glas, muurisolatie, vloerisolatie
- Verwarming
- c.v.-ketel
Garage
- Type
- geen garage
Berging
- Type
- inpandig



















































