Govert Flinckstraat 281H
- Type
- Appartement
- Soort
- benedenwoning
- Bouwjaar
- 1886
- Kamers
- 3
- Slaapkamers
- 2
- Woonopp.
- 57 m²
- Energielabel
- A
* English translation below *
‘Volledig gerenoveerd, sfeervol 3-kamerappartement met label A in het hart van de gewilde en bruisende wijk De Pijp – Govert Flinckstraat 281H’
Dit recent hoogwaardig en volledig gerenoveerde driekamerappartement met een woonoppervlakte van circa 57 m² is gelegen midden in de geliefde Amsterdamse Pijp, op loopafstand van tal van voorzieningen. De woning combineert modern wooncomfort met karakteristieke details en is volledig instapklaar.
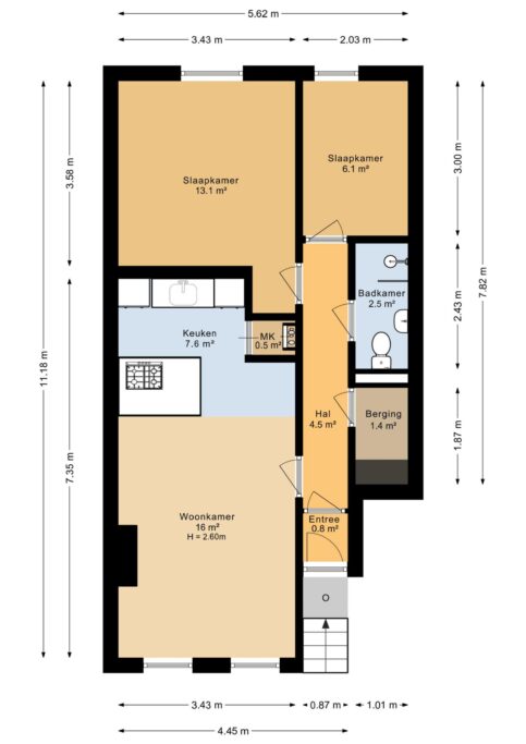
Indeling
Via de eigen entree op de begane grond betreedt u dit hoogwaardig afgewerkte appartement met een visgraatvloer en vloerverwarming door de gehele woning. De lichte, riante woonkamer biedt ruimte voor een royale zit- en eethoek en behoudt karakter door sierlijsten en glas-in-lood deuren. De luxe open keuken met kookeiland is voorzien van hoogwaardige inbouwapparatuur. Verder beschikt het appartement over twee goed bemeten slaapkamers en een moderne badkamer met inloopdouche, wastafel, mechanische ventilatie en toilet.
Bijzonderheden
- Woonoppervlakte ca. 57 m²
- Volledig en hoogwaardig gerenoveerd
- Energielabel A
- Woonkamer gelegen op de zonzijde
- Luxe keuken met kookeiland
- Visgraatvloer met vloerverwarming
- Nieuwe installaties (cv, ventilatie, elektra)
- Erfpacht afgekocht tot en met 31-12-2058
- Eeuwigdurende erfpacht vastgeklikt tegen gunstige voorwaarde (Spijtoptantregeling)
- VvE professioneel beheerd door VvE’tje (met 39k in de reserve)
- Ouderdoms-, asbest-, en as is, where is clausules van toepassing
- Oplevering in overleg
Comfort en techniek
De woning is tot in detail gerenoveerd en voorzien van alle moderne gemakken. Zo zijn alle installaties vernieuwd, waaronder een nieuwe cv-ketel en mechanische ventilatie. Ook de meterkast en rookkanalen zijn volledig vervangen. De woning is uitstekend geïsoleerd en beschikt over energielabel A. Daarnaast is de woning volledig voorzien van vloerverwarming en dimverlichting in alle ruimtes. De kunststof kozijnen zijn uitgevoerd met dubbel glas.
Omgeving
Het appartement is gelegen aan de Govert Flinckstraat in stadsdeel Oud-Zuid. De levendige, jonge en bruisende buurt De Pijp ligt op wandelafstand van het groene Sarphatipark met een speeltuin en grote grasvelden. Ook de Amstel, de Ferdinand Bolstraat en de Albert Cuypmarkt, die zes dagen per week geopend is, liggen om de hoek. In de directe omgeving bevindt zich een zeer divers aanbod aan restaurants, cafés, koffiezaken en winkels.
Bereikbaarheid
De bereikbaarheid is uitstekend. Meerdere tram- en busverbindingen zijn nabij en metrostation De Pijp ligt op korte afstand. Binnen enkele autominuten is de Ring A10 bereikbaar, waardoor u binnen circa 20 minuten Schiphol bereikt. Parkeren kan met vergunning op straat of in de nabijgelegen parkeergarage aan het Museumplein.
Meetinstructie
De woning is gemeten volgens de NEN2580 Meetinstructie om een indicatie van de gebruiksoppervlakte te geven. Ondanks zorgvuldige meting kunnen afwijkingen voorkomen. Aan de meting kunnen geen rechten worden ontleend. Indien exacte maatvoering van belang is, adviseren wij deze zelf te (laten) controleren.
Disclaimer
Deze informatie is met de nodige zorgvuldigheid samengesteld. Er wordt echter geen aansprakelijkheid aanvaard voor enige onvolledigheid, onjuistheid of de gevolgen daarvan. Alle opgegeven maten en oppervlakten zijn indicatief. Op deze aanbieding zijn de NVM-voorwaarden van toepassing.
English
---------------------------------------------------------------
‘Fully renovated, charming 3-room apartment with energy label A in the heart of the popular and vibrant De Pijp – Govert Flinckstraat 281H’
This recently, high-quality and fully renovated three-room apartment with a living area of approximately 57 m² is located in the heart of the sought-after De Pijp area in Amsterdam, within walking distance of numerous amenities. The property combines modern living comfort with characteristic details and is completely move-in ready.
Layout
Through the private entrance on the ground floor, you enter this high-end finished apartment featuring a herringbone floor with underfloor heating throughout. The bright and spacious living room offers ample space for a generous seating and dining area and retains its character through decorative moldings and stained-glass doors. The luxurious open kitchen with cooking island is equipped with high-quality built-in appliances. The apartment also features two well-sized bedrooms and a modern bathroom with walk-in shower, washbasin, mechanical ventilation, and toilet.
Key features
- Living area approx. 57 m²
- Fully and high-quality renovated
- Energy label A
- Living room situated on the sunny side
- Luxury kitchen with cooking island
- Herringbone floor with underfloor heating
- New installations (central heating, ventilation, electrical system)
- Leasehold paid off until 31-12-2058
- Perpetual leasehold secured under favorable conditions (Spijtoptantenregeling)
- Homeowners’ association professionally managed by VvE’tje (with 39k in reserve)
- Age clause, asbestos clause, “as is, where is” clause and non-occupancy clause apply
- Delivery in consultation
Comfort and technology
The property has been renovated in detail and equipped with all modern conveniences. All installations have been renewed, including a new central heating boiler and mechanical ventilation. The meter cupboard and flue ducts have also been fully replaced. The apartment is well insulated and has an energy label A. Additionally, the entire property features underfloor heating and dimmable lighting in all rooms. The window frames are made of plastic and fitted with double glazing.
Location
The apartment is situated on Govert Flinckstraat in the Oud-Zuid district. The lively, young and vibrant neighborhood De Pijp is within walking distance of the green Sarphatipark, which offers a playground and large lawns. The Amstel River, Ferdinand Bolstraat, and the famous Albert Cuyp Market, open six days a week, are just around the corner. The immediate area offers a wide variety of restaurants, cafés, coffee spots, and shops.
Accessibility
Accessibility is excellent. Several tram and bus connections are nearby, and metro station De Pijp is within short distance. The A10 ring road can be reached within minutes by car, allowing you to reach Schiphol Airport in approximately 20 minutes. Parking is available via permit on the street or in the nearby parking garage at Museumplein.
Measurement instruction
The property has been measured in accordance with the NEN2580 measurement standard to provide an indication of the usable floor area. Despite careful measurement, deviations may occur. No rights can be derived from these measurements. If exact dimensions are important, we advise you to verify them independently.
Disclaimer
This information has been compiled with due care. However, no liability is accepted for any inaccuracies, omissions, or consequences thereof. All stated sizes and surfaces are indicative. NVM conditions apply to this offer.
Kenmerken
Overdracht
- Vraagprijs
- € 550.000,- k.k.
- Status
- Verkocht onder voorbehoud
- Aanvaarding
- in overleg
Bouw
- Type
- Appartement
- Soort
- benedenwoning
- Bouwjaar
- 1886
- Onderhoud binnen
- uitstekend
- Onderhoud buiten
- uitstekend
Appartement
- Kamers
- 3
- Slaapkamers
- 2
- Verdiepingen
- 1
- Woonopp.
- 57 m²
- Inhoud
- 208 m³
- Ligging
- in centrum, in woonwijk
Energie
- Energie label
- A
- Isolatie
- dubbel glas, vloerisolatie
- Verwarming
- c.v.-ketel, vloerverwarming geheel
Garage
- Type
- geen garage

Makelaarsland Nederland B.V.
info@makelaarsland.nl
(+31) 882 00 20 00
Vraag een bezichtiging aan














