Hoge Dries 10
- Type
- Woonhuis
- Soort
- herenhuis
- Type woonhuis
- vrijstaande woning
- Bouwjaar
- 1990
- Kamers
- 12
- Slaapkamers
- 6
- Woonopp.
- 277 m²
- Energielabel
- B
Groot, stijlvol, vrijstaand herenhuis gelegen op een rustige woonlocatie in Mariaheide (Veghel), omgeven door een fraai aangelegde, veel privacy biedende tuin. Bent u op zoek naar een ruime hoogwaardig afgewerkte woning met een unieke indeling? Dan is deze stijlvolle vrijstaande woning aan de Hoge Dries 10 in Mariaheide precies wat u zoekt. Dit is geen standaardhuis – het is een unieke kans voor wie zoekt naar veel ruimte, karakter en veel mogelijkheden.
Een huis met een extra aparte woonruimte (zogenaamde 2de Woonruimte) is ideaal voor:
-Kangoeroewoning (waar b.v. jullie kinderen hun eigen privéplek kunnen hebben),
-Mantelzorg,
-Samengestelde gezinnen,
-Kantoor of Eigen praktijk,
-“Bed & Breakfast”.
Dit huis is geen kluswoning – direct klaar voor dubbele bewoning met de parkeergelegenheid op eigen terrein voor minimaal 5 auto’s!
LIGGING
In een rustige en kindvriendelijke wijk van Mariaheide staat deze prachtige en ruime vrijstaande woning. Gelegen op een hoek naast een speeltuin met een achtertuin op het westen, geniet je hier gedurende de dag en de avond van de zon.
VOORZIENINGEN
Dit huis is gelegen op 243 m van de bushalte, 7 m van de speeltuin, 105 m van de basisschool, 250 m van outdoor Tennis & Padel Park “De Krekel” (één van de grootste in Nederland), 800 meter van een groenteboer met brood, 823 m van de afrit naar de snelweg, ca. 1 km van een kinderopvang, 2,1 km van een supermarkt, 3,5 km van het centrum van Veghel, 3,5 km van het centrum van Uden, 14,8 km van het treinstation.
Dichtstbijzijnde steden Veghel en Uden bieden alles wat je nodig hebt: de bruisende centrums met winkels, horecagelegenheden. Veghel biedt culturele voorzieningen zoals theater De Blauwe Kei aan. Scholen, sportverenigingen, fitnesscentrums en gezondheidszorg zijn volop aanwezig in de directe omgeving. Via de nabijgelegen N279 en A50 zijn steden als Eindhoven (top technologieregio van wereldformaat - Brainport), Den Bosch en Nijmegen uitstekend bereikbaar. Ook het openbaar vervoer is goed geregeld.
Gehele woning = Hoofdwoning + 2de woonruimte
Gehele woning = 12 kamers, waarvan 6 slaapkamers
Hoofdwoning = 10 kamers, waarvan 5 slaapkamers
2de woonruimte = 2 kamers, waarvan 1 slaapkamer
HOOFDWONING BESCHRIJVING
Aantal kamers: 10 kamers, waarvan 5 slaapkamers
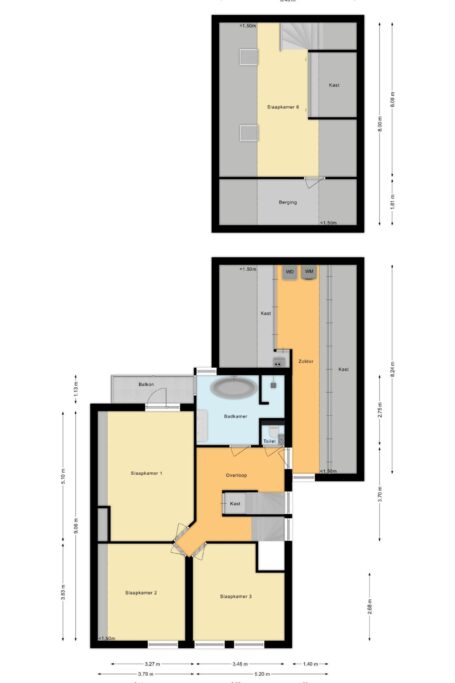
BEGANE GROND
Bij binnenkomst in de hal heb je direct het gevoel dat je je begeeft in een ruimtelijke woning.
Met een eiken trap naar de eerste etage waaronder zich een fijne kelder bevindt heb je een praktische opbergmogelijkheid voor voorraad. Tevens de moderne meterkast met een glasvezelaansluiting. Verder is er een grote hoek voor de garderobe aanwezig. Er ligt een keramische parketvloer die in zijn geheel doorloopt naar de woonkeuken, woonkamer, bijkeuken en het toilet. De wanden zijn gestukt.
Vanuit de hal kom je direct de landelijk ogende woonkeuken binnen. De keuken is in hoekopstelling geplaatst en voorzien van een granieten aanrechtblad, diverse inbouwapparatuur zoals een vaatwasser, combimagnetron, dubbele spoelbak, afzuigkap en 4-pits gasfornuis. Verschillende ramen zorgen voor een mooie lichtinval. In deze ruimte is vloerverwarming aanwezig.
Via de keuken bereik je de ruime, lichte doorzonwoonkamer met een sfeervolle speksteen-houtkachel.
De schuifpui aan de achterzijde zorgt voor een prettige verbinding met de achtertuin. Er is direct achter de schuifpui een overdekt terras. Alle wanden zijn voorzien van stukwerk en afgewerkt met een hoge plint. In deze ruimte is vloerverwarming aanwezig.
Er is vanuit de keuken toegang tot de bijkeuken waar de toiletruimte en de doorgang naar de de 2de Woonruimte zijn. De geheel betegelde toiletruimte is voorzien van een vrijhangend toilet. In de bijkeuken is vloerverwarming aanwezig.
De TV-kamer is toegankelijk door de schuifdeur in de keuken. Deze is afgewerkt met een tegelvloer en biedt ook prima plek om uit te rusten.
De Kantoorruimte is toegankelijk door de deur in de TV-kamer. Deze is afgewerkt met een tegelvloer, heeft een eigen raam.
EERSTE VERDIEPING
Op de eerste verdieping zijn drie slaapkamers, een moderne inloopkast, een ruime moderne badkamer (incl. douche en ligbad), een apart toilet en een kleine opbergruimte gelegen.
3 slaapkamers en de overloop zijn allen afgewerkt met een houten vloer, die doorloopt naar alle kamers zonder drempels. De wanden in 2 slaapkamers zijn keurig glad gestukt afgewerkt. De wanden in de derde slaapkamer zijn afgewerkt met behang. De ‘master’ slaapkamer beschikt over een balkon en een airco-unit (die ook gebruikt kan worden om te verwarmen). Tevens is er in deze slaapkamer een op maat gemaakte inbouwkast met zitplaats en make-uptafel aanwezig. De overloop heeft een airco-unit (welke kan koelen en verwarmen) die zorgt om perfecte temperatuur op de hele verdieping inclusief slaapkamers.
De stijlvolle inloopkast met op maat gemaakte kasten geeft veel ruimte voor de kleding, tassen en schoenen. De wasmachine, de droger en Cv-ketel zijn buiten zicht geplaatst in de ontworpen kasten. In deze ruimte is vloerverwarming aanwezig.
De vloer in de badkamer is betegeld met 2 Italiaanse slaps, zodat de hele vloer alleen maar 1 naad heeft! De douchevloer en wanden zijn met slaps betegeld. De wanden in de overige ruimte van de badkamer zijn glad gestukt. Er is een exclusief vrijstaand ligbad aanwezig. In deze badkamer is vloerverwarming aanwezig. Het toilet bevindt zich in een aparte ruimte.
TWEEDE VERDIEPING
Op de tweede verdieping (zolderruimte) zijn de vierde en de vijfde slaapkamer met dakramen aanwezig. Verder is er tussen de slaapkamers een grote vaste kast ingebouwd, waar veel spullen/kleding opgeborgen kunnen worden.
DE TUIN
De tuin is zonnig gelegen op het westen met een achterom (waar ook de fietsenstalling is en de afvalcontainers staan) bereikbaar. Er is een overdekt terras in de tuin en er is veel privacy. Er is een speciaal betegelde ruimte voor stoelen en een ingebouwde parasolvoet aanwezig – een heerlijke BBQ-plek. De schutting is van echt bamboe gemaakt en geeft een ongelofelijk warme sfeer. Achterin de tuin is er nog een extra ruimte die kan prima dienstdoen als de houtopslag en/of als gereedschap-berging.
2de WOONRUIMTE BESCHRIJVING
(mogelijkheden voor kangoeroewoning, mantelzorg, samengestelde gezinneneigen, kantoor/eigen praktijk of “Bed & Breakfast”)
Aantal kamers: 2 kamers, waarvan 1 slaapkamer
BEGANE GROND
De 2de Woonruimte heeft een eigen entree via de achtertuin. Bij binnenkomst in het halletje heb je direct links een kapstokwand.
Achter de kapstok is er een open ruimte met de toegang naar een ruimte (die als sportruimte of rustruimte of eetkamer kan gebruikt worden). Er is een meterkast met wasmachine en wasdroger aansluiting. De moderne keuken met een prachtige mozaïekwand, koffiehoek. De badkamer met ruime douche, toilet en wastafelmeubel met verlichte spiegel. De woonkamer waar een zitbank geplaatst kan worden met een televisiewand. De gehele begane grond heeft vloerverwarming inclusief de badkamer.
Met de trap naar de eerste etage waaronder zich een fijne kelderkast bevindt, heb je een praktische opbergmogelijkheid voor de voorraad. Rechts van de trap is er ook een aparte ruimte aanwezig waar b.v. een losse vriezer kan staan en waar veel spullen op de planken gezet kunnen worden.
Begane grond is afgewerkt met een visgraat-PVC-vloer.
Vanuit de woonkamer kan men door de grote schuifpui de tuin in.
EERSTE VERDIEPING
Op de eerste verdieping (zolder) is een slaapkamer die met een moderne kledingkast uitgerust is.
Er is ook een ruime gesloten bergruimte aanwezig. De vloer op de eerste verdieping is afgewerkt met een luxe tapijt.
Kenmerken
Overdracht
- Vraagprijs
- € 929.500,- k.k.
- Status
- beschikbaar
- Aanvaarding
- in overleg
Bouw
- Type
- Woonhuis
- Soort
- herenhuis
- Type woonhuis
- vrijstaande woning
- Bouwjaar
- 1990
- Onderhoud binnen
- uitstekend
- Onderhoud buiten
- goed
Tuin
- Type
- achtertuin, voortuin, zijtuin
- Hoofd tuin
- achtertuin
- Ligging
- zuid, west
- Oppervlakte
- 130 m²
Woonhuis
- Kamers
- 12
- Slaapkamers
- 6
- Verdiepingen
- 3
- Woonopp.
- 277 m²
- Inhoud
- 1.046 m³
- Perceelopp.
- 450 m²
- Ligging
- aan rustige weg, in woonwijk
Energie
- Energie label
- B
- Isolatie
- dubbel glas, HR-glas, volledig geïsoleerd
- Verwarming
- c.v.-ketel, houtkachel
Garage
- Type
- geen garage
Berging
- Type
- aangebouwd steen
- Voorzieningen
- voorzien van elektra

Makelaarsland Nederland B.V.
info@makelaarsland.nl
(+31) 882 00 20 00
Vraag een bezichtiging aan





















































































