Kerkstraat 11
- Type
- Woonhuis
- Soort
- eengezinswoning
- Type woonhuis
- vrijstaande woning
- Bouwjaar
- 1895
- Kamers
- 5
- Slaapkamers
- 4
- Woonopp.
- 110 m²
- Energielabel
- D
Op één van de leukste plekjes in de historische kern van het prachtige Vechtdorp Loenen aan de Vecht staat deze charmante en sfeervolle woning.
Midden in het hart van het pittoreske dorp Loenen aan de Vecht staat deze charmante en sfeervolle woning. Dankzij de hoekligging beschikt de woning over extra lichtinval. Het betreft een woning met beschermd dorpsgezicht.
Loenen aan de Vecht is een schilderachtig dorp. Het dorp wordt gekenmerkt door monumentale huizen, pittoreske straatjes, prachtige kerk en bijzondere buitenplaatsen. Door het dorp stroomt de idyllische rivier de Vecht.
Deze knusse en sfeervolle 19e-eeuwse woning is een kans voor een ieder die de charme zoekt van een historisch centrum en wil genieten van faciliteiten op loopafstand van de woning.
Boodschappen doen bij de supermarkt, de Franse bakkerij Chris en een biologische groenteboer zijn op loopafstand.
Loenen aan de Vecht heeft voor en dorp een zeer kwalitatief goed aanbod aan kleine cafés en restaurants. Naast de frituur en de gewone restaurants zijn er de sterrenrestaurants ’t Amsterdammertje en Tante Koosje.
Sportfaciliteiten zijn er voldoende. Er is een actieve hockey, tennis, padel en voetbal vereniging en er is ook nog een golfclub.
Watersportliefhebbers kunnen genieten op de Vecht, de Loosdrechtse Plassen of de Vinkeveense Plassen.
Er zijn diverse basisscholen en kinderopvang aanwezig.
Binnen 15 minuten rijden bereikt u Amsterdam, Utrecht en ’t Gooi. De luchthaven Schiphol is binnen een half uur te bereiken.
Kortom een unieke plek in het oude dorp van Loenen aan de Vecht.
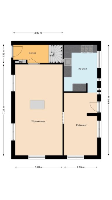
Indeling van het huis:
Begane grond: via de entree met stijlvolle oude hardstenen vloer betreedt u de gezellige woonkamer met in het midden een grote open haard en een prachtig houten plafond.
Vanuit de woonkamer is toegang naar de woonkeuken en de keuken zelf, die voorzien is van een zwart granieten blad.
1e verdieping: vanuit de de gang bereik je via een houten wenteltrap de bovenste verdieping. Op deze verdieping bevindt een overloop met wasruimte, de badkamer en vier slaap/werkkamers.
Boven 2 slaapkamers bevindt zich een grote vliering die gebruikt wordt als opbergruimte.
De kleine tuin is te bereiken via de achterdeur in de keuken. De tuin is vrijwel onderhoudsvrij en staat t.o.v. de zon op het Zuid Westen/Noord Westen. In de tuin is een poort naar de straat.
Bijzonderheden:
- woning met Beschermd dorpsgezicht;
- bouwjaar 1895;
- Cv-ketel uit 2024;
- binnenluiken voor de ramen in de woonkamer;
- Bijzonder fraaie schutting.
Kenmerken
Overdracht
- Vraagprijs
- € 750.000,- k.k.
- Status
- beschikbaar
- Aanvaarding
- in overleg
Bouw
- Type
- Woonhuis
- Soort
- eengezinswoning
- Type woonhuis
- vrijstaande woning
- Bouwjaar
- 1895
- Onderhoud binnen
- goed
- Onderhoud buiten
- goed
Tuin
- Type
- voortuin, zijtuin
- Hoofd tuin
- voortuin
- Ligging
- west
- Oppervlakte
- 32 m²
Woonhuis
- Kamers
- 5
- Slaapkamers
- 4
- Verdiepingen
- 2
- Woonopp.
- 110 m²
- Inhoud
- 436 m³
- Perceelopp.
- 95 m²
- Ligging
- in centrum, in woonwijk
Energie
- Energie label
- D
- Isolatie
- dakisolatie, gedeeltelijk dubbel glas, voorzetramen
- Verwarming
- c.v.-ketel
Garage
- Type
- geen garage
Berging
- Type
- vrijstaand hout

Makelaarsland Nederland B.V.
info@makelaarsland.nl
(+31) 882 00 20 00
Vraag een bezichtiging aan































