Moesdistelstraat 19
- Type
- Woonhuis
- Soort
- eengezinswoning
- Type woonhuis
- tussenwoning
- Bouwjaar
- 1986
- Kamers
- 4
- Slaapkamers
- 3
- Woonopp.
- 107 m²
- Energielabel
- B
Makelaarsland Flevoland biedt aan: Moesdistelstraat 19 te Almere.
Deze woning beschikt over een lichte en royale woonkamer, een functionele keuken, drie slaapkamers, waskamer, een luxe badkamer en een heerlijke achtertuin met tuinkamer! De tuinkamer heeft een loungehoek en een riante jacuzzi. De woning bevindt zich op een centrale locatie, op loop- en fietsafstand van het bruisende centrum van Almere. Hier vind je een breed aanbod aan winkels, supermarkten, restaurants en gezellige terrassen. Daarnaast ligt het NS-station Almere Centrum op loopafstand, met directe treinverbindingen naar onder andere Lelystad en Amsterdam. Ook de belangrijkste uitvalswegen zijn snel bereikbaar. Voor recreatie en ontspanning zijn diverse voorzieningen in de nabije omgeving te vinden, zoals het groene Beatrixpark, waar je kunt wandelen, sporten of ontspannen in een natuurlijke omgeving. Kortom een hele leuke woning op een top locatie, die zeker een bezichtiging waard is!
Goed om te weten:
* Op loopafstand van het NS station Almere Centrum.
* Veel voorzieningen in de directe omgeving.
* Vrij uitzicht aan de voorzijde.
* Laat je verrassen door de sfeervolle verlichting in de hele woning.
* Badkamer is vernieuwd in 2023.
* Toilet begane grond is vernieuwd in 2020.
* De tuinkamer en jacuzzi zijn van 2024.
* Energielabel B (19-11-2035).
* Voldoende parkeerplaatsen voor de deur.
* Het betreft een bieden vanaf prijs.
* Oplevering in overleg.
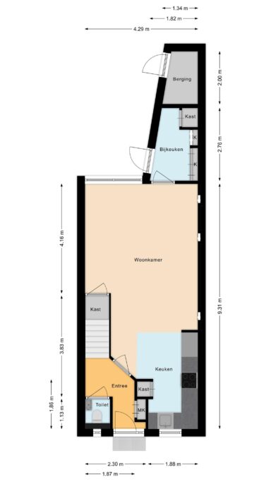
Indeling
Begane grond:
Entree, hal met meterkast, toilet, trapopgang en toegang tot de open keuken aan de voorzijde en de tuingerichte woonkamer met trapkast. De hal is iets verkleind, waardoor de keuken en woonkamer ruimer en praktischer zijn geworden. De functionele keuken heeft een hoekopstelling, diverse inbouwapparaten en veel opbergruimte. Via de bijkeuken bereik je de achtertuin die is voorzien van een luxe tuinkamer met een loungehoek en een heerlijke jacuzzi.
Eerste verdieping:
Overloop, twee slaapkamers, wasruimte en de badkamer. De luxe badkamer is voorzien van wastafel met meubel, inloopdouche en een toilet.
Tweede verdieping
Riante vierde slaapkamer met een dakkapel aan de achterzijde, vrijstaande whirlpool en heel veel opbergruimte.
Kenmerken
Overdracht
- Vraagprijs
- € 435.000,- k.k.
- Status
- beschikbaar
- Aanvaarding
- in overleg
Bouw
- Type
- Woonhuis
- Soort
- eengezinswoning
- Type woonhuis
- tussenwoning
- Bouwjaar
- 1986
- Onderhoud binnen
- goed
- Onderhoud buiten
- goed
Tuin
- Type
- achtertuin, voortuin
- Hoofd tuin
- achtertuin
- Ligging
- noord, oost
- Oppervlakte
- 50 m²
Woonhuis
- Kamers
- 4
- Slaapkamers
- 3
- Verdiepingen
- 3
- Woonopp.
- 107 m²
- Inhoud
- 380 m³
- Perceelopp.
- 114 m²
- Ligging
- aan rustige weg, in woonwijk
Energie
- Energie label
- B
- Isolatie
- dakisolatie, dubbel glas, muurisolatie, vloerisolatie
- Verwarming
- elektrische verwarming, stadsverwarming
Garage
- Type
- geen garage
Berging
- Type
- vrijstaand hout
- Voorzieningen
- voorzien van elektra, voorzien van verwarming, voorzien van water
- Isolatie
- geen isolatie

Makelaarsland Flevoland
markbijker@makelaarsland.nl
(+31) 88 200 20 00
Vraag een bezichtiging aan














































