Park Vredehof 12
- Type
- Appartement
- Soort
- portiekflat
- Bouwjaar
- 1962
- Kamers
- 3
- Slaapkamers
- 2
- Woonopp.
- 104 m²
- Energielabel
- F
Dit verzorgde, instap klaar en volledig gerenoveerd driekamerappartement op de eerste verdieping biedt u een comfortabele en rustige woonomgeving, omgeven door groen. Het appartement combineert ruimte, licht en een prachtig uitzicht, perfect voor wie op zoek is naar een fijne woonplek.
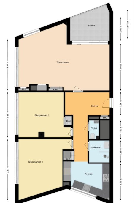
Bij binnenkomst in het appartement betreedt u de hal, die toegang geeft tot alle ruimtes. De woonkamer voelt ruim en licht aan, mede dankzij de grote raampartijen die een schitterend uitzicht bieden op de gezamenlijke privé tuin met diverse prachtige bomen. Op deze eerste verdieping heeft u het beste uitzicht en contact met de prachtige (park) tuin. Op koelere dagen geniet u hier van de sfeervolle gashaard, terwijl u op zonnige dagen via de schuifpui het balkon op het westen betreedt. De keuken is praktisch ingedeeld en voorzien van diverse inbouwapparatuur en voldoende kastruimte. Het appartement beschikt over twee lichte en ruime slaapkamers beide voorzien van kasten voor optimaal opbergen. De badkamer is compleet uitgerust met een douche, en wastafel. Daarnaast is er een apart toilet in de hal, wat extra gemak biedt voor uzelf en uw gasten.
Bij aankomst kunt u gemakkelijk gebruikmaken van de lift of de trap om het appartement te bereiken. Voor extra gemak beschikt het appartement over een eigen berging in de onderbouw. Daarnaast is er een eigen garage met een elektrische garagedeur, ideaal voor het veilig stallen van uw auto.
De rustige ligging in Park Vredehof biedt niet alleen groene vergezichten, maar ook het gemak van nabijgelegen voorzieningen. Op korte afstand vindt u de Van Weedestraat, met een uitgebreid aanbod aan winkels. Elke donderdag kunt u genieten van de lokale markt. De omgeving is perfect bereikbaar te voet, per fiets of auto. De uitvalswegen A27 en A1 zijn binnen 10 minuten bereikbaar, en zowel station Soest als station Baarn liggen dichtbij. Natuurliefhebbers kunnen hun hart ophalen met de nabijgelegen bossen, wandelpaden en de Soesterduinen.
Bent u op zoek naar een sfeervol en praktisch appartement waar u in alle rust kunt genieten van uw nieuwe thuis? Neem dan contact met ons op voor een bezichtiging. Een plek zoals deze komt niet vaak voorbij!
Bijzonderheden:
- Er is een gezonde en actieve VvE
- Maandelijkse VvE bijdrage € 350,00
- Voldoende parkeergelegenheid op de privégrond.
- Het is op deze locatie rustig wonen en in Soestdijk en geheel Soest heerst een gemoedelijke sfeer.
Kenmerken
Overdracht
- Vraagprijs
- € 595.000,- k.k.
- Status
- beschikbaar
- Aanvaarding
- in overleg
Bouw
- Type
- Appartement
- Soort
- portiekflat
- Bouwjaar
- 1962
- Onderhoud binnen
- goed
- Onderhoud buiten
- goed
Appartement
- Kamers
- 3
- Slaapkamers
- 2
- Verdiepingen
- 1
- Woonopp.
- 104 m²
- Inhoud
- 341 m³
- Ligging
- aan park, aan rustige weg, in bosrijke omgeving, vrij uitzicht
Energie
- Energie label
- F
- Isolatie
- HR-glas
- Verwarming
- blokverwarming, gashaard
Garage
- Type
- vrijstaand steen
- Capaciteit
- 1 auto
Berging
- Type
- inpandig
- Voorzieningen
- voorzien van elektra

Makelaarsland Nederland B.V.














































