Pieter Calandlaan 586
- Type
- Appartement
- Soort
- bovenwoning
- Bouwjaar
- 1998
- Kamers
- 4
- Slaapkamers
- 3
- Woonopp.
- 116 m²
- Energielabel
- A
**** English version bellow ****
Royaal en licht 4-kamer hoekappartement met groot balkon in De Aker-Oost – Amsterdam Nieuw-West
Gelegen in de gunstig gelegen en geliefde wijk De Aker-Oost vindt u dit royale en lichte hoekappartement van ca. 116 m². Het appartement is uniek gelegen op de 5e verdieping van een goed onderhouden complex met mooie binnentuin en biedt veel privacy (geen naaste buren), een groot balkon van ca. 18 m² en een fantastisch vrij uitzicht. Indien gewenst kan het appartement eenvoudig worden aangepast naar een 5-kamer woning.
Perfecte locatie en bereikbaarheid
Dit appartement ligt boven winkelcentrum De Dukaat. Direct onder handbereik vindt u dus een breed aanbod aan winkels: Jumbo, bakker, slager, drogist, visboer, kapper, fietsenwinkel, een gezondheidscentrum een een apotheek. Basisscholen en kinderopvang zijn praktisch om de hoek. Voor het openbaar vervoer stopt tram lijn 1 voor de deur en brengt u in ca. 20 minuten naar het centrum. Met de auto bent u binnen enkele minuten op de A4, A5, A9 of A10, ideaal voor snelle verbindingen naar Schiphol, Haarlem, Amstelveen of Hoofddorp.
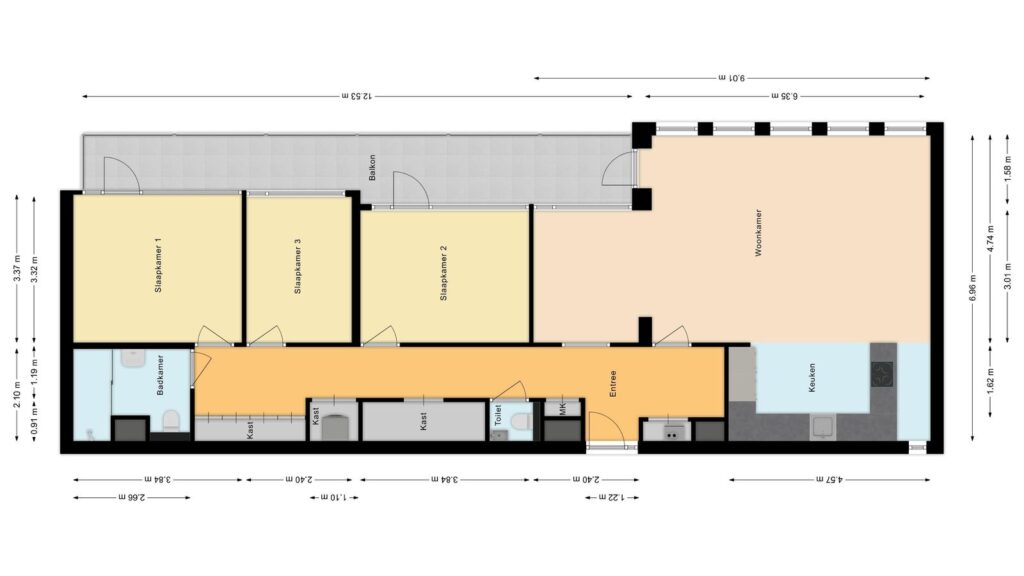
Indeling van de woning
Entree: rustige binnengang; centrale entree van het complex met intercom, brievenbussen, lift en trappenhuis.
Woonkamer: royale, lichte woonkamer van ca. 40 m² met veel raampartijen en toegang tot het grote balkon. Lamelparketvloer met eiken toplaag (2022).
Keuken: moderne keuken met professionele 5-pits inductiekookplaat, twee ovens waarvan 1 oven tot 300°C met pyrolysefunctie, vriezer, koelkast, vaatwasser, veel opbergruimte en een gezellige bar.
Slaapkamers: drie slaapkamers (ca. 12 m², 12 m² en 8 m²) met nette parketvloer; twee kamers hebben directe toegang tot het balkon. Mogelijkheid om een deel van de woonkamer om te bouwen tot een vierde slaapkamer van ca. 7 m².
Badkamer en toilet: eigentijdse badkamer (2024) met ruime douche en waterbesparende regendouche, designradiator, modern wastafelmeubel en toilet. Separaat toilet in de gang.
Berging en extra ruimte: inpandige berging, externe box van 7 m² en aparte wasruimte met aansluitingen voor wasmachine en eventueel een droger.
Buitenruimte:
Groot balkon van ca. 18 m² met vrij uitzicht en veel zon, perfect om te ontspannen of te borrelen met familie en vrienden.
Bijzonderheden:
Woonoppervlakte: ca. 116 m²
Bouwjaar: 1998
Erfpacht: eeuwigdurend afgekocht!
Actieve en gezonde VvE
Servicekosten: € 168,50 per maand
Verwarming via stadsverwarming
Betaald parkeren met twee parkeervergunningen en bezoekersregeling
Zeer lichte ligging met privacy
Mogelijkheid tot 5-kamer woning
Recent vernieuwd badkamer en toilet (2024)
Uitstekende bereikbaarheid met tram, auto en fiets
Op loopafstand van supermarkt, bakker, winkels, scholen en gezondheidscentrum
Oplevering in overleg, maar kan snel.
Samengevat:
Een royaal en licht hoekappartement in De Aker-Oost, met een groot balkon, modern interieur en volop mogelijkheden om de indeling volledig naar eigen wens aan te passen. Perfect voor ouderen, gezinnen, stellen of thuiskantoren, op een locatie waar alles binnen handbereik is.
---------------------------------------------------------------------------------------------
Spacious and Bright 3-Bedroom Corner Apartment with Large Balcony in De Aker-Oost – Amsterdam Nieuw-West
Located in the highly sought-after and well-connected neighborhood of De Aker-Oost, this spacious and bright corner apartment offers approximately 116 m² of living space. Uniquely situated on the 5th floor of a well-maintained complex with a beautiful inner garden, the apartment provides plenty of privacy (no immediate neighbours), a large balcony of around 18 m², and stunning unobstructed views. The layout can easily be adapted to create a 4th bedroom if desired.
Perfect Location and Accessibility
This apartment is situated directly above De Dukaat shopping center, placing a wide range of amenities right at your doorstep: Jumbo supermarket, bakery, butcher, drugstore, fishmonger, hairdresser, bike shop, health center, and pharmacy. Primary schools and childcare facilities are conveniently nearby. Public transport is excellent, with tram line 1 stopping right outside and taking you to Amsterdam city center in approximately 20 minutes. By car, the A4, A5, A9, and A10 motorways are just minutes away, providing easy connections to Schiphol, Haarlem, Amstelveen, and Hoofddorp.
Layout
Entrance: accessed via a quiet inner corridor; central entrance with intercom, mailboxes, lift, and stairwell.
Living Room: spacious and bright living room of approximately 40 m² with large windows and direct access to the balcony. Laminate parquet flooring with oak top layer (2022).
Kitchen: modern kitchen with professional 5-burner induction hob, two ovens (one up to 300°C with pyrolysis), freezer, fridge, dishwasher, a lot of storage, and a cozy breakfast bar.
Bedrooms: three bedrooms (approx. 12 m², 12 m², and 8 m²) with elegant parquet floors; two rooms have direct balcony access. A section of the living room can be converted into a fourth bedroom of approximately 7 m².
Bathroom and Toilet: contemporary bathroom (2024) with spacious shower and water-saving rain showerhead, designer radiator, modern vanity unit, and toilet. Separate guest toilet in the hallway.
Storage and Additional Space: internal storage, external storage box of 7 m², and a separate laundry room with hookups for a washing machine and dryer.
Outdoor Space
Large balcony of approximately 18 m² with unobstructed views and plenty of sun, perfect for relaxing or entertaining friends and family.
Features
Living area: approx. 116 m²
Year built: 1998
Ground lease: perpetual paid off
Active and healthy VvE
Service costs: €168.50 per month
Heating via district heating
Paid parking with two permits and visitor scheme
Very bright corner location with privacy
Potential to convert into a 4-bedroom apartment
Recently renovated bathroom and toilet: 2024
Excellent accessibility by tram, car, and bike
Walking distance to the supermarket, bakery, shops, schools, and health facilities
Delivery: in consultation, but a fast delivery is possible
Summary
A spacious and light corner apartment in De Aker-Oost with a large balcony, modern interior, and plenty of options to tailor the layout to your own needs. Perfect for seniors, families, couples, or those working from home, in a location where everything is within easy reach.
Kenmerken
Overdracht
- Vraagprijs
- € 565.000,- k.k.
- Status
- Verkocht onder voorbehoud
- Aanvaarding
- in overleg
Bouw
- Type
- Appartement
- Soort
- bovenwoning
- Bouwjaar
- 1998
- Onderhoud binnen
- goed
- Onderhoud buiten
- goed
Appartement
- Kamers
- 4
- Slaapkamers
- 3
- Verdiepingen
- 1
- Woonopp.
- 116 m²
- Inhoud
- 356 m³
- Ligging
- aan rustige weg, in woonwijk, vrij uitzicht
Energie
- Energie label
- A
- Isolatie
- dubbel glas
- Verwarming
- stadsverwarming
Garage
- Type
- geen garage
Berging
- Type
- box

Makelaarsland Nederland B.V.
info@makelaarsland.nl
(+31) 882 00 20 00
Vraag een bezichtiging aan
































