Polderweg 4
- Type
- Bouwgrond
- Oppervlakte
- 11.005 m²
POLDERWEG 4-4A te HAARZUILENS
Unieke kans: Hofstede met vergunning voor renovatie/herbouw 2 woningen met bijgebouwen op een schitterende locatie nabij Utrecht
Aan de rand van het karakteristieke dorp Haarzuilens, onder de rook van Utrecht, bieden wij u een bijzonder object aan: een perceel van maar liefst 11.005 m² met een bestaande dubbele woning en diverse bijgebouwen. Voor dit geheel is een vergunning verleend door de gemeente Utrecht voor de renovatie/herbouw van twee royale woningen, conform de bouwtekeningen.
Een unieke kans voor wie op zoek is naar ruimte, rust en de vrijheid om wonen, werken en hobby’s te combineren in een landelijke setting. Dankzij de bestaande situatie en de goedgekeurde plannen is deze locatie uitermate geschikt voor dubbele bewoning en/of mantelzorg. Uiteraard staat het toekomstige kopers vrij om een eigen invulling te geven aan de mogelijkheden binnen het bestemmingsplan.
Deze locatie biedt het beste van twee werelden: de charme van landelijk wonen tussen boerderijen, weilanden en karakteristieke wegenlinten, gecombineerd met een uitstekende bereikbaarheid. Binnen 15 minuten bereikt u de A2 bij Breukelen of de A12 bij Harmelen. Grote steden als Utrecht, Amsterdam, Rotterdam en Den Haag liggen binnen handbereik.
Op korte afstand bevinden zich de dorpen Kockengen en Vleuten voor de dagelijkse voorzieningen, en op steenworp afstand ligt het historische Haarzuilens, met onder andere Kasteel De Haar, een basisschool en gezellige horecagelegenheden. Ook natuurliefhebbers komen volop aan hun trekken dankzij het nabijgelegen Parkbos de Haar, met een netwerk van wandel- en fietspaden.
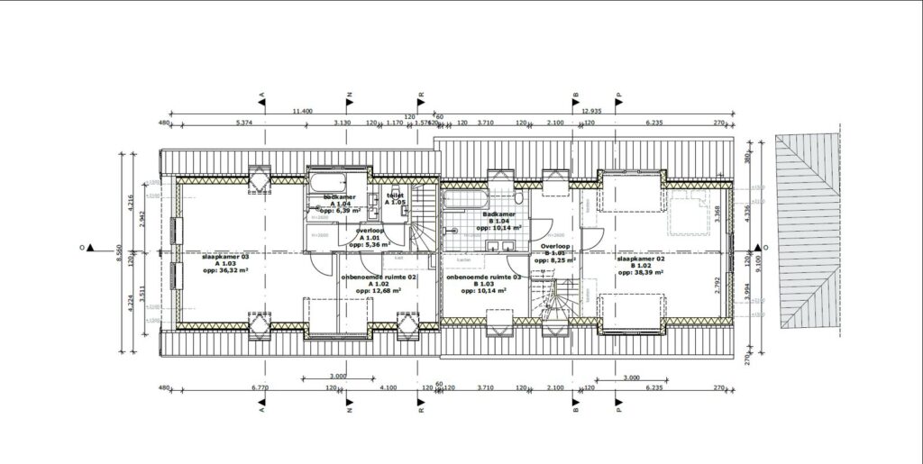
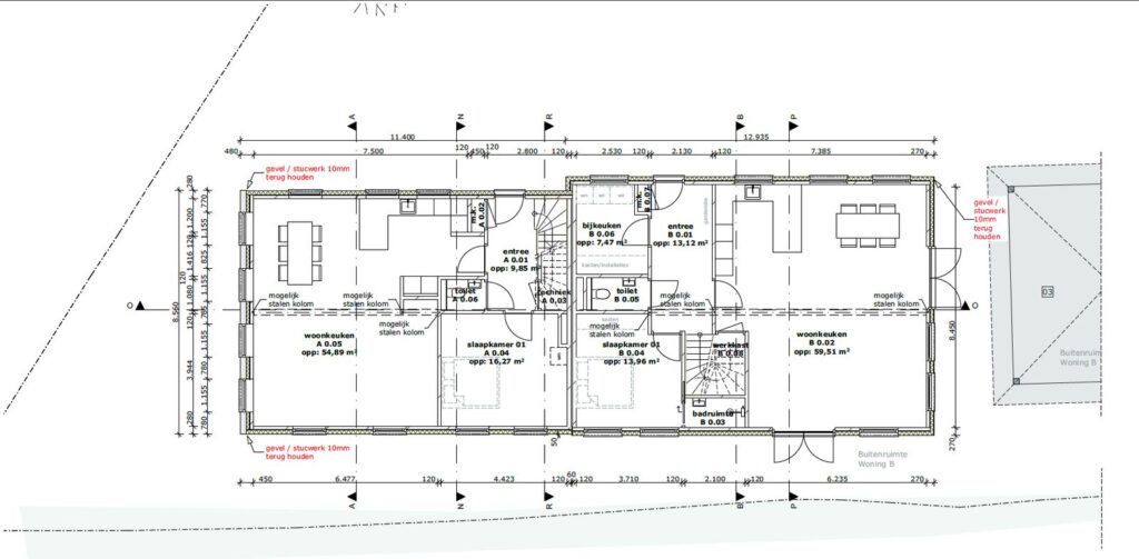
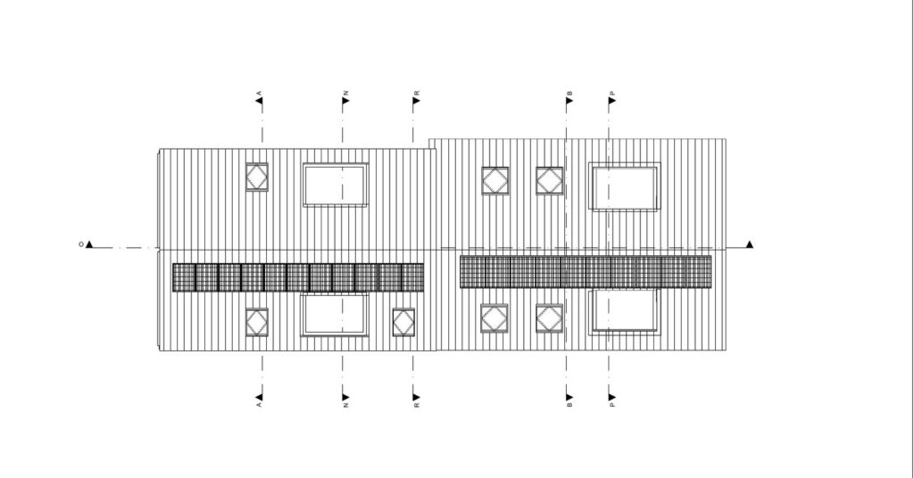
Conform de reeds afgeven vergunning ontstaat er na realisatie van de huidige plannen het volgende:
Een woonhuis van ca. 160 m2 woonoppervlakte verdeeld over 2 etages met kelder;
Een woonhuis van ca. 175 m2 woonoppervlakte verdeeld over 2 etages met kelder;
Een hooiberg/overkapping van ca. 55m2
Een schuur van ca. 140 m2
Een schuur van ca. 192 m2
Een schuur van ca 136 m2
Een loods van 375 m2
Voor meer informatie en/of een toelichting op het geheel, neem contact op met ons kantoor.
Kortom, een verrassend geheel op een aantrekkelijke locatie in het karakteristieke dorp Haarzuilens. Zie jij jezelf hier al wonen? Maak dan snel een afspraak met je (NVM) makelaar. Er zijn diverse NVM-clausules van toepassing (zie brochure). Gunning aan verkoper. We hebben ons best gedaan om alle info zo scherp en up-to-date mogelijk te presenteren. Fouten zijn nooit uit te sluiten. Check daarom altijd zelf de belangrijke details voordat je een beslissing neemt.
POLDERWEG 4-4A in HAARZUILENS
Unique opportunity: Farmstead with permit for renovation/rebuilding of two houses with outbuildings in a beautiful location near Utrecht
On the edge of the characteristic village of Haarzuilens, just outside Utrecht, we are offering a very special property: a plot of no less than 11,005 m² with an existing double house and various outbuildings. The municipality of Utrecht has granted a permit for the renovation/reconstruction of two spacious homes, in accordance with the building plans.
A unique opportunity for those looking for space, tranquility, and the freedom to combine living, working, and hobbies in a rural setting. Thanks to the existing situation and the approved plans, this location is ideal for double occupancy and/or informal care. Of course, future buyers are free to interpret the possibilities within the zoning plan as they see fit.
This location offers the best of both worlds: the charm of rural living among farms, meadows, and characteristic roads, combined with excellent accessibility. Within 15 minutes, you can reach the A2 at Breukelen or the A12 at Harmelen. Major cities such as Utrecht, Amsterdam, Rotterdam, and The Hague are within easy reach.
The villages of Kockengen and Vleuten are a short distance away for daily amenities, and the historic village of Haarzuilens is just a stone's throw away, with De Haar Castle, a primary school, and cozy restaurants and cafés. Nature lovers will also find plenty to enjoy thanks to the nearby Parkbos de Haar, with its network of walking and cycling paths.
In accordance with the permit already issued, the following will be created after completion of the current plans:
A house with approximately 160 m² of living space spread over two floors with a basement;
A house with approximately 175 m² of living space spread over two floors with a basement;
A haystack/canopy of approx. 55 m²
A barn of approx. 140 m²
A barn of approx. 192 m²
A barn of approx. 136 m²
A shed of 375 m²
For more information and/or an explanation of the property, please contact our office.
In short, a surprising property in an attractive location in the characteristic village of Haarzuilens. Can you already see yourself living here? Then make an appointment with your (NVM) real estate agent. Various NVM clauses apply (see brochure). Sale subject to seller's approval. We have done our best to present all information as accurately and up-to-date as possible. However, errors can never be ruled out. Therefore, always check the important details yourself before making a decision.
Kenmerken
Overdracht
- Vraagprijs
- € 1.950.000,- k.k.
- Status
- beschikbaar
- Aanvaarding
- in overleg
Bouw
- Type
- Bouwgrond
Bouwgrond
- Oppervlakte
- 11.005 m²
- Perceelopp.
- 11.005 m²
- Ligging
- buiten bebouwde kom, landelijk gelegen, vrij uitzicht










































