Servatiusstraat 5
- Type
- Woonhuis
- Soort
- eengezinswoning
- Type woonhuis
- geschakelde 2-onder-1-kapwoning
- Bouwjaar
- 1989
- Kamers
- 4
- Slaapkamers
- 3
- Woonopp.
- 103 m²
- Energielabel
- C
In een rustige straat in Vught-Zuid gelegen geschakelde twee-onder-één kap woning met inpandige garage en carport en leuk ingerichte tuin.
De woning bevindt zich binnen 5 min loopafstand van winkelcentrum Moleneindplein, een gezondheidscentrum, een basisschool en een grote speelwei.
Indeling:
Begane grond
Overdekte entree. Hal met trapopgang, toilet met fonteintje en meterkast.
Ruime L-vormige woonkamer (ca 40 m2) met openslaande deuren naar terras en tuin. De grote ramen zorgen voor veel lichtinval. De woonkamer is voorzien van een massieve eikenhouten parketvloer. Halfopen hoekopgestelde keukeninrichting voorzien van gaskookplaat, afzuigkap en koelkast.
Bijkeuken met wasmachineaansluiting en toegangsdeur tot garage en tuin. De bijkeuken is uitgevoerd in spouwmuren, geïsoleerd en voorzien van verwarming.
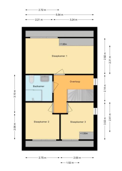
Eerste verdieping
Drie slaapkamers, twee aan de voorzijde en een ruime ouderslaapkamer aan de achterzijde (ca 17 m2), allen met dakkapel. De slaapkamers zijn alle drie licht dankzij de grote raampartijen. Gehele verdieping voorzien van houten vloer.
Badkamer met inloopdouche, vaste wastafel en tweede toilet.
Tweede verdieping
Door middel van een vaste trap te bereiken zolderruimte, ingericht als hobbyruimte (mogelijkheid voor een vierde slaapkamer) en hier opstelling van de CV combiketel (2020).
De garage is opgetrokken in spouwmuren en voorzien van dubbel glas, isolatie en verwarming. Dit biedt mogelijkheden om de garage bij de woonruimte te betrekken. Ook boven de garage is er mogelijkheid tot aanbouw van een extra (slaap)kamer.
De goed onderhouden tuin is voorzien van straatwerk en hagen, onderhoudsarm en de achtertuin is speels ingericht met tweetal terrassen en tuinhuisje. De tuin ligt beschut en is daardoor een toevluchtsoord voor diverse vogelsoorten en af en toe een eekhoorn.
Algemeen
Gezellig huis met fijne tuin, rustig gelegen en met diverse mogelijkheden tot realiseren van extra kamer(s).
Kenmerken
Overdracht
- Vraagprijs
- € 559.000,- k.k.
- Status
- beschikbaar
- Aanvaarding
- in overleg
Bouw
- Type
- Woonhuis
- Soort
- eengezinswoning
- Type woonhuis
- geschakelde 2-onder-1-kapwoning
- Bouwjaar
- 1989
- Onderhoud binnen
- goed
- Onderhoud buiten
- goed
Tuin
- Type
- achtertuin, voortuin
- Hoofd tuin
- achtertuin
- Ligging
- oost
- Oppervlakte
- 56 m²
Woonhuis
- Kamers
- 4
- Slaapkamers
- 3
- Verdiepingen
- 3
- Woonopp.
- 103 m²
- Inhoud
- 448 m³
- Perceelopp.
- 217 m²
- Ligging
- beschutte ligging, in woonwijk
Energie
- Energie label
- C
- Isolatie
- dakisolatie, dubbel glas, grotendeels dubbelglas, muurisolatie, vloerisolatie
- Verwarming
- c.v.-ketel
Garage
- Type
- aangebouwd steen
- Capaciteit
- 1 auto

Makelaarsland Nederland B.V.
info@makelaarsland.nl
(+31) 882 00 20 00
Vraag een bezichtiging aan























