St.-Ludgerushof 21D
- Type
- Woonhuis
- Soort
- eengezinswoning
- Type woonhuis
- tussenwoning
- Bouwjaar
- 2021
- Kamers
- 5
- Slaapkamers
- 4
- Woonopp.
- 91 m²
- Energielabel
- A+
Strakke en instapklare 5-kamer woning (2021) met zonnige tuin op het zuiden, gelegen in het rustige en groene Zuilen.
Op zoek naar een ruime gezinswoning met karakter, moderne afwerking en fijne buitenruimte in een rustige buurt? Dan is deze charmante woning precies wat je zoekt! Verdeeld over drie verdiepingen vind je onder andere drie slaapkamers, een moderne keuken, een luxe badkamer, een zonnige tuin met berging én een multifunctionele zolderverdieping, gelegen in het meest knusse hofje van de wijk. Kortom, deze woning heeft het!
V 5-kamer woning in de geliefde wijk Zuilen
V Zonnige tuin op het zuiden met ruime berging
V De woning is van 2021 dus zo goed als nieuw en onderhoudsvrij
V De woning is 100% instapklaar en super strak afgewerkt met moderne inrichting
V HR++ glas en 7 zonnepanelen
V Vloerverwarming op de begane grond en 1e verdieping
V Autoluw en kindvriendelijk hofje
V Nabij OV, winkels, horeca, Julianapark en scholen
V Slechts 10 minuten fietsen naar Utrecht Centrum
V Energielabel A+
V Oplevering in overleg
De woning ligt in het populaire Zuilen, naast het karaktervolle voormalige Sint-Ludgerus klooster. Deze wijk heeft alles: het fijne Julianapark voor een frisse neus of sportief rondje, de Amsterdamsestraatweg met al haar winkels, speciaalzaken en horeca, en de Vecht op steenworp afstand. Voor een ijsje ga je naar Roma, en voor een goede borrel of diner kun je onder andere terecht bij The Colour Kitchen, MOOS of De Hondekop. Met de fiets ben je zo in de binnenstad of op station Zuilen, en ook de uitvalswegen zijn goed bereikbaar.
INDELING
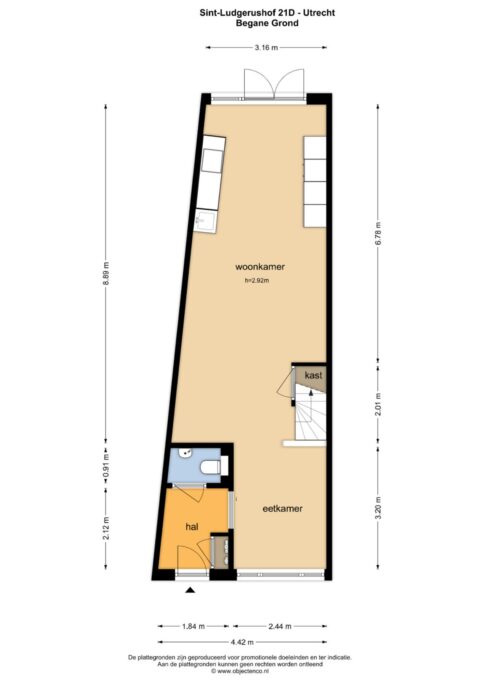
Begane grond:
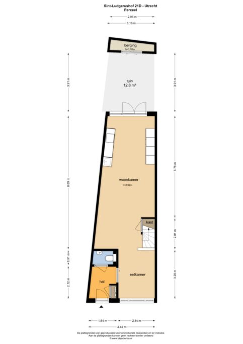
Je komt binnen in de hal met meterkast, trapopgang en modern toilet. De lichte woonkamer heeft openslaande deuren naar de zonnige tuin. Aan de achterzijde ligt de moderne open keuken, uitgerust met een kookplaat, afzuigkap, combi-oven, koelkast, vriezer, vaatwasser en Quooker. Vanuit de eethoek kijk je fijn het rustige hofje in. Vanuit de keuken is de tuin toegankelijk, waar zich ook de berging bevindt.
1e verdieping:
Hier vind je drie slaapkamers: twee aan de achterzijde en een ruime slaapkamer aan de voorzijde. De moderne badkamer is compleet met ligbad, wastafelmeubel en tweede toilet. De hele verdieping beschikt over comfortabele vloerverwarming.
2e verdieping:
Via een vaste trap bereik je de ruime zolderverdieping. Deze kamer is multifunctioneel te gebruiken als werkkamer, logeerkamer of hobbyruimte. Hier bevindt zich ook de aansluiting voor wasmachine en droger. Er is hier ook genoeg bergruimte achter de knieschotten.
Tuin:
Aan de voorzijde ligt een autoluwe straat waar je rustig buiten kunt zitten met een kop koffie. De achtertuin ligt op het zuiden, is onderhoudsvriendelijk aangelegd en beschikt over een ruime berging. Een heerlijke plek om te genieten van de zon en lange zomeravonden.
Kortom, deze instapklare eengezinswoning met moderne afwerking, vier slaapkamers en tuin op een rustige plek in de stad is absoluut een bezichtiging waard. Zie jij jezelf hier al wonen? Maak dan snel een afspraak met je (NVM) makelaar of vraag een bezichtiging aan via Funda. Er zijn diverse NVM-clausules van toepassing (zie brochure). Gunning aan verkoper. We hebben ons best gedaan om alle info zo scherp en up-to-date mogelijk te presenteren. Fouten zijn nooit uit te sluiten. Check daarom altijd zelf de belangrijke details voordat je een beslissing neemt.
Sleek and move-in ready 5-room home (2021) with a sunny south-facing garden, located in the peaceful and green Zuilen district.
Are you looking for a spacious family home with character, modern finishes and a pleasant outdoor space in a quiet neighborhood? Then this charming house is exactly what you’re looking for! Spread over three floors you will find, among other things, three bedrooms, a modern kitchen, a luxurious bathroom, a sunny garden with storage, and a multifunctional attic floor, situated in the coziest courtyard of the neighborhood. In short, this home has it all!
V 5-room home in the beloved Zuilen district
V Sunny south-facing garden with spacious storage
V Built in 2021, so virtually new and maintenance-free
V 100% move-in ready and beautifully finished with modern interior
V HR++ glazing and 7 solar panels
V Underfloor heating on the ground floor and first floor
V Low-traffic and child-friendly courtyard
V Close to public transport, shops, restaurants, Julianapark and schools
V Only 10 minutes by bike to Utrecht city center
V Energy label A+
V Transfer in consultation
The home is located in popular Zuilen, next to the characterful former Saint Ludgerus monastery. This district has everything: the lovely Julianapark for fresh air or a sporty stroll, the Amsterdamsestraatweg with all its shops, specialty stores and hospitality, and the River Vecht just a stone’s throw away. For ice cream you go to Roma, and for a good drink or dinner you can visit The Colour Kitchen, MOOS or De Hondekop. By bike you’re quickly in the city center or at Zuilen station, and the major roads are also easily accessible.
LAYOUT
Ground floor:
You enter through the hall with fuse box, staircase and modern toilet. The bright living room has French doors opening to the sunny garden. At the rear is the modern open kitchen, equipped with a hob, extractor, combi-oven, refrigerator, freezer, dishwasher and Quooker. From the dining area you have a pleasant view of the quiet courtyard. The garden is accessible from the kitchen, where the storage shed is also located.
1st floor:
Here you will find three bedrooms: two at the rear and a spacious bedroom at the front. The modern bathroom is fully equipped with a bathtub, washbasin unit and second toilet. The entire floor features comfortable underfloor heating.
2nd floor:
A fixed staircase leads to the spacious attic floor. This room can be used multifunctionally as a home office, guest room or hobby space. Here you will also find the connections for washing machine and dryer. There is plenty of storage space behind the knee walls as well.
Garden:
At the front is a low-traffic street where you can sit outside peacefully with a cup of coffee. The rear garden faces south, is low-maintenance and features a spacious storage shed. A wonderful place to enjoy the sun and long summer evenings.
In short, this move-in ready family home with modern finishes, four bedrooms and a garden in a peaceful part of the city is absolutely worth a viewing. Can you already picture yourself living here? Then quickly schedule an appointment with your (NVM) real estate agent or request a viewing via Funda. Various NVM clauses apply (see brochure). Seller reserves the right to choose buyer. We have done our best to present all information as accurately and up-to-date as possible. Errors can never be completely ruled out. Therefore, always check important details yourself before making a decision.
Kenmerken
Overdracht
- Vraagprijs
- € 575.000,- k.k.
- Status
- Verkocht onder voorbehoud
- Aanvaarding
- in overleg
Bouw
- Type
- Woonhuis
- Soort
- eengezinswoning
- Type woonhuis
- tussenwoning
- Bouwjaar
- 2021
- Onderhoud binnen
- goed, uitstekend
- Onderhoud buiten
- goed, uitstekend
Tuin
- Type
- achtertuin
- Hoofd tuin
- achtertuin
- Ligging
- zuid
- Oppervlakte
- 14 m²
Woonhuis
- Kamers
- 5
- Slaapkamers
- 4
- Verdiepingen
- 3
- Woonopp.
- 91 m²
- Inhoud
- 342 m³
- Perceelopp.
- 77 m²
- Ligging
- aan rustige weg, beschutte ligging, in woonwijk
Energie
- Energie label
- A+
- Isolatie
- volledig geïsoleerd
- Verwarming
- c.v.-ketel
Garage
- Type
- geen garage
Berging
- Type
- vrijstaand hout




















































