Steenhoffstraat 49
- Type
- Woonhuis
- Soort
- eengezinswoning
- Type woonhuis
- vrijstaande woning
- Bouwjaar
- 1972
- Kamers
- 7
- Slaapkamers
- 5
- Woonopp.
- 205 m²
- Energielabel
- C
Vrijstaande, ruime woning met 5 slaapkamers en inpanding kantoor/praktijkruimte in Soest
Deze onder architectuur gebouwde vrijstaande woning met 4 woonlagen laat zich pas echt begrijpen zodra je binnenstapt. Door de bouw als dijkwoning heeft het huis een speelse split-level indeling, een volledig souterrain met tuinkamer en tuincontact en meerdere buitenruimtes.
Achter de karaktervolle gevel schuilt een uitzonderlijk ruim en flexibel huis met 7 kamers, waarvan 5 slaapkamers, 2 badkamers met toilet, een separaat toilet en een totaal woonoppervlak van circa 204 m².
Een woning die voelt als vrij wonen, met alle dagelijkse voorzieningen dichtbij.
De huidige bewoners hebben hier ruim 20 jaar met veel plezier gewoond. Door een nieuwe levensfase is het tijd voor een volgende stap en komt deze woning beschikbaar voor nieuwe bewoners die ruimte, flexibiliteit en comfort waarderen.
Een huis dat meebeweegt met het leven
De woonkeuken aan de voorzijde vormt het hart van het huis. Een lichte en prettige plek om samen te komen, te koken en de dag te beginnen. Vanuit de keuken is er direct toegang tot een zonnig zijterras.
Via de split-level bereik je de tuingerichte woonkamer. De open haard en de schuifpui naar het balkon, met trap naar de tuin, zorgen voor veel licht en een warme sfeer. Hier ervaar je privacy en groen, midden in het dorp.
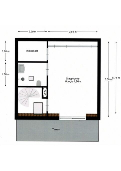
Op de eerste verdieping bevinden zich vier slaapkamers, een badkamer met ligbad en badmeubel en een ruime overloop. De slaapkamer aan de voorzijde is voorzien van geluidswerend glas en een inbouwkast.
De tweede verdieping heeft een lichte overloop met groot dakraam en is ingericht als royale ouderslaapkamer met eigen badkamer met douche, toilet (Sani broyeur), badmeubel en extra dakraam. Daarnaast is er een ruime inloopkast en een schuifpui naar het privé dakterras. Een rustige, lichte plek met veel privacy.
Extra ruimte met uitzonderlijke flexibiliteit
Op souterrainniveau bevinden zich een ruim washok en bergruimte met opstelling voor wasmachine, droger en cv-ketel, evenals een extra opbergruimte die toegankelijk is vanuit de tuinkamer.
Het volledig ingerichte souterrain is momenteel in gebruik als kantoorruimte en is zowel vanuit de woning als buitenom via een eigen entree bereikbaar. Dit zorgt voor zelfstandigheid en privacy.
Met de lichte tuinkamer en openslaande deuren naar de besloten tuin is dit niveau geschikt als:
• kantoor of praktijk aan huis
• gastenverblijf
• mantelzorgoplossing
• onderdeel van dubbele bewoning
Door de indeling is de woning zelfs geschikt om te worden opgedeeld in drie of vier wooneenheden. Dit maakt het huis interessant voor samengestelde gezinnen, wonen met familie of toekomstgerichte woonvormen.
Buitenleven op meerdere niveaus
De woning beschikt over meerdere buitenruimtes met elk een eigen sfeer. Een zijterras bij de keuken, een balkon aan de woonkamer met trap naar de tuin, een dakterras op de tweede verdieping en een beschutte achtertuin.
In de tuin staat een houten schuur van circa 15 m², praktisch opgedeeld in twee delen. Geschikt voor fietsen, opslag of hobbyruimte. Er is altijd een plek in de zon of in de schaduw.
Praktische en duurzame voorzieningen
De woning beschikt over:
• 12 zonnepanelen (geplaatst in 2022, circa 4950 kWh)
• volledig dubbel glas
• energielabel C
• glasvezelaansluiting
Centraal wonen met alles dichtbij
De woning ligt zeer centraal in Nederland. Supermarkt, restaurants, winkels en basisschool bevinden zich op loopafstand. Middelbare scholen in Soest, Baarn en Amersfoort zijn goed bereikbaar.
Station Soestdijk ligt op circa 5 minuten lopen en heeft een directe treinverbinding naar Utrecht Centraal.
Met de auto bereik je Amersfoort in ongeveer 10 minuten, Hilversum in circa 15 minuten, Utrecht in circa 20 minuten en Amsterdam in ongeveer 35 minuten.
Soest is bovendien een dorp waar vrij parkeren nog vanzelfsprekend is.
Groen, vorstelijk en volop buitenruimte
Soest ligt op de rand van het Gooi en staat bekend om zijn groene en bijna vorstelijke omgeving, met Paleis Soestdijk als markant middelpunt waar regelmatig evenementen plaatsvinden.
In de directe omgeving vind je de Soesterduinen, de Utrechtse Heuvelrug, heidegebieden, rivier de Eem, polderlandschap, Lage Vuursche, Kasteel Groeneveld en De Paltz. Er zijn volop fiets- en wandelmogelijkheden.
Voor wie is deze woning bijzonder geschikt?
Deze woning is ideaal voor:
• grote gezinnen
• gezinnen die veel ruimte en meerdere slaapkamers zoeken
• mensen die wonen en werken aan huis willen combineren
• samengestelde gezinnen of wonen met familie
• kopers die toekomstgericht willen wonen, met mogelijkheden voor mantelzorg of dubbele bewoning
• liefhebbers van groen, fietsen en wandelen, met steden binnen handbereik
In het kort
Een veelzijdige woning voor wie ruim, comfortabel en toekomstgericht wil wonen.
Een huis dat zich aanpast aan verschillende levensfasen en woonwensen.
Een woning die niet alleen overtuigt op papier, maar vooral in gevoel.
Kenmerken
Overdracht
- Vraagprijs
- € 880.000,- k.k.
- Status
- beschikbaar
- Aanvaarding
- in overleg
Bouw
- Type
- Woonhuis
- Soort
- eengezinswoning
- Type woonhuis
- vrijstaande woning
- Bouwjaar
- 1972
- Onderhoud binnen
- goed
- Onderhoud buiten
- goed
Tuin
- Type
- achtertuin, voortuin, zijtuin
- Hoofd tuin
- achtertuin
- Ligging
- noord, oost
- Oppervlakte
- 51 m²
Woonhuis
- Kamers
- 7
- Slaapkamers
- 5
- Verdiepingen
- 4
- Woonopp.
- 205 m²
- Inhoud
- 694 m³
- Perceelopp.
- 272 m²
- Ligging
- in centrum
Energie
- Energie label
- C
- Isolatie
- dakisolatie, dubbel glas, muurisolatie
- Verwarming
- c.v.-ketel
Garage
- Type
- geen garage
Berging
- Type
- vrijstaand hout
- Voorzieningen
- voorzien van elektra

Makelaarsland Nederland B.V.
info@makelaarsland.nl
(+31) 882 00 20 00
Vraag een bezichtiging aan







































































