Vosmaerstraat 28
- Type
- Woonhuis
- Soort
- eengezinswoning
- Type woonhuis
- tussenwoning
- Bouwjaar
- 1906
- Kamers
- 3
- Slaapkamers
- 2
- Woonopp.
- 86 m²
- Energielabel
- C
Sfeervolle uitgebouwde tussenwoning met stadstuin en berging in de geliefde wijk Nieuw-Engeland
Deze charmante en recent gerenoveerde 3-kamer woning in de Vosmaerstraat is er zo eentje waar je hart sneller van gaat kloppen. Denk: karakteristieke details, een lichte uitbouw, een moderne afwerking en een heerlijk zonnige tuin met berging. En dat alles in de mooiste straat van Nieuw-Engeland en op loopafstand van het centrum en Utrecht Centraal. Kortom, deze woning heeft het!
V Sfeervolle 3-kamer woning in de populaire wijk Nieuw-Engeland
V Lichte uitbouw met openslaande deuren
V Karakteristieke details met extra aandacht voor lichtinval en authenticiteit
V Zonnige tuin op het zuidwesten met berging
V Uitstekend gelegen met alle belangrijke voorzieningen binnen handbereik; op loopafstand van Utrecht Centraal en het stadscentrum
V Parkeren met vergunning, bewonerskorting beschikbaar.
V Energielabel C (tot 2035), dubbele beglazing, HR+/++ (ook glas-in-lood!) en triple
V Oplevering in overleg
De ligging van deze fijne woning is perfect: in een rustige straat, maar toch midden in het levendige Nieuw-Engeland. Je wandelt zo naar de leukste restaurants en koffietentjes in de buurt zoals Koffie & Ik, Pitot, BijBram en Café West.. Ook supermarkten, scholen, kinderopvang en sportfaciliteiten liggen om de hoek. Binnen 5 minuten lopen sta je op Utrecht Centraal en met een paar minuten extra zit je in de binnenstad. Fietsend ben je zó in het groen van Park Oog in Al met Landhuis in de Stad, bij Buurten in de Fabriek of Café Kanaalzicht. Wil je iets verder van huis dan zijn OV en uitvalswegen snel en gemakkelijk bereikbaar.
INDELING
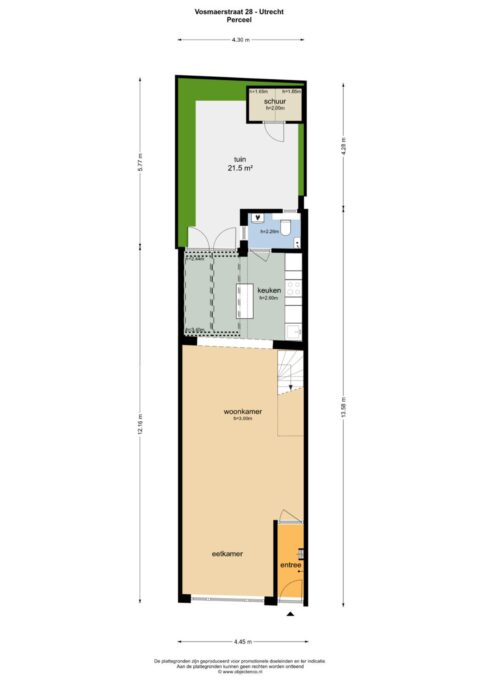
Begane grond:
Achter de voordeur schuilt de hal met meterkast. Vanuit hier kom je direct in de sfeervolle woonkamer met open trap en eetgedeelte aan de voorzijde. De lichte living is voorzien van een lichte laminaatvloer en heeft een frisse en ruimtelijke uitstraling. Aan de achterzijde bevindt zich de halfopen keuken, die is uitgerust met een koel-vriescombinatie, combi-oven, vaatwasser, gaskookplaat en afzuigkap. Voor het overstappen naar een inductiekookplaat zijn onder het keukenblok al een extra loze leiding aangelegd . Naast de keuken is het toilet met fonteintje te vinden. Vanuit de keuken kun je via de openslaande deuren naar de zonnige tuin.
1e Verdieping:
Via de open trap bereik je de overloop van deze woonlaag met 2 slaapkamers en de badkamer. De slaapkamer aan de achterzijde heeft een glazen wand die uitkijkt op de trapopgang die door de natuurlijke lichtinval extra licht is. Aan de voorzijde ligt de master bedroom. In deze kamer vind je eveneens de wasmachine- en drogeraansluiting. Alle ruimtes zijn voorzien van een nieuwe laminaatvloer. De badkamer is netjes en voorzien van een inloopdouche, wastafelmeubel, tweede toilet en designradiator.
2e Verdieping:
Via een vlizotrap is de vliering te bereiken met fijne extra bergruimte. Ideaal voor spullen die je minder vaak nodig hebt zoals koffers, seizoensspullen of archief.
Tuin:
Achter de woning ligt een beschutte tuin met veel privacy. De tuin ligt op het zuiden, wat betekent dat je hier van ’s middags tot in de avond kunt genieten van de zon. De uitbouw zorgt voor een fijne overgang tussen binnen en buiten. Achterin staat een handige houten berging, perfect voor de tuinkussens, gereedschap, of een fiets. De tuin is netjes aangelegd en biedt genoeg ruimte om te ontspannen of te tuinieren. Voor het stallen van je fiets kun je je aanmelden bij diverse stallingen in de buurt.
Tips voor kopers:
-Het platte dak is ideaal voor het plaatsen van zonnepanelen; de loze leidingen zijn al doorgetrokken naar de vliering.
-Er is een praktische mogelijkheid (mits vergund) om een extra verdieping op het huis te plaatsen. In de buurt is dat op meerdere woningen goedgekeurd en uitgevoerd.
Kortom, ideaal voor (her-) starters die op zoek zijn naar sfeer, ruimte op een toplocatie in Utrecht. Start hier jouw woondroom? Maak dan snel een afspraak met je (NVM) makelaar of vraag een bezichtiging aan via Funda. Er zijn diverse NVM-clausules van toepassing, opgenomen in de brochure. Gunning aan verkoper.
Charming Extended Mid-Terrace Home with City Garden and Shed in the Popular Nieuw-Engeland District
This recently renovated and characterful 2-bedroom home (3-room total) on Vosmaerstraat is one to fall in love with. Think: original details, a bright rear extension, modern finishes, and a sunny southwest-facing garden with a storage shed. All of this located on the most beautiful street in Nieuw-Engeland – just a short walk from Utrecht Central Station and the city centre. In short: this home has it all!
Highlights:
V Charming 2-bedroom home in the sought-after Nieuw-Engeland neighbourhood
V Bright rear extension with French doors to the garden
V Authentic details with extra attention to natural light and original character
V Sunny southwest-facing garden with wooden shed
V Prime location with all amenities nearby; walking distance to Utrecht Central Station and the city centre
V Permit-based parking with resident discount available
V Energy label C (valid until 2035), double glazing incl. HR+/++ and stained glass, plus triple glazing
V Handover in consultation
Location
This cosy home is perfectly situated: in a quiet street, yet right in the heart of vibrant Nieuw-Engeland. Within walking distance you'll find lovely cafés and restaurants such as Koffie & Ik, Pitot, BijBram, and Café West. Supermarkets, schools, daycare centres, and sports facilities are all nearby. Utrecht Central Station is just a 5-minute walk, and the historic city centre is just a few minutes beyond that. Prefer green surroundings? A short bike ride takes you to Park Oog in Al with Landhuis in de Stad, Buurten in de Fabriek or Café Kanaalzicht. Need to travel further? Public transport and major roads are easily accessible.
Layout
Ground floor:
Behind the front door you’ll find the hallway with the meter cupboard. From here you enter the charming living room with open staircase and dining area at the front. The bright living space features a light laminate floor and has a fresh, open feel. At the rear is the semi-open kitchen, fitted with a fridge/freezer combo, combi-oven, dishwasher, gas hob, and extractor fan. An empty conduit for electric cooking has already been installed beneath the cabinets, making a switch to induction easy. Next to the kitchen is a toilet with hand basin. French doors lead from the kitchen to the sunny garden.
First floor:
The open staircase leads to the landing with access to two bedrooms and the bathroom. The rear bedroom features a glass wall overlooking the stairwell, allowing even more natural light to flow through the space. The main bedroom is located at the front and includes the washing machine and dryer connections. All rooms are fitted with new laminate flooring. The bathroom is neat and includes a walk-in shower, vanity unit, second toilet, and designer radiator.
Second floor:
Via a retractable ladder, you reach the attic with plenty of storage space – ideal for suitcases, seasonal items, or archived documents.
Garden:
To the rear lies a private and sheltered garden with excellent privacy. Facing southwest, you can enjoy the sun from early afternoon until the evening. The extension creates a pleasant flow between indoors and outdoors. At the back of the garden is a wooden shed – ideal for storing garden cushions, tools, or bicycles. The garden is well-maintained and offers enough space to relax, dine, or garden. For bike storage, there are several nearby (resident-accessible) storage facilities you can register for.
Tips for Buyers:
- The flat roof is ideal for installing solar panels, conduits have already been installed up to the attic
- There is a practical possibility (subject to planning permission) to add an extra floor. Several homes in the street have already done so successfully
In summary:
Perfect for first-time buyers or those looking to move up the property ladder, this home offers character, space, and a prime location in Utrecht. Ready to make your move? Schedule a viewing via your (NVM) real estate agent or request a tour directly through Funda. Various standard NVM clauses apply – these are included in the brochure. Final decision rests with the seller.
Kenmerken
Overdracht
- Vraagprijs
- € 600.000,- k.k.
- Status
- beschikbaar
- Aanvaarding
- in overleg
Bouw
- Type
- Woonhuis
- Soort
- eengezinswoning
- Type woonhuis
- tussenwoning
- Bouwjaar
- 1906
- Onderhoud binnen
- goed, uitstekend
- Onderhoud buiten
- goed, uitstekend
Tuin
- Type
- achtertuin
- Hoofd tuin
- achtertuin
- Ligging
- zuid
- Oppervlakte
- 22 m²
Woonhuis
- Kamers
- 3
- Slaapkamers
- 2
- Verdiepingen
- 3
- Woonopp.
- 86 m²
- Inhoud
- 333 m³
- Perceelopp.
- 79 m²
- Ligging
- aan rustige weg, in woonwijk
Energie
- Energie label
- C
- Isolatie
- driedubbel glas, dubbel glas, HR-glas, muurisolatie, vloerisolatie
- Verwarming
- c.v.-ketel
Garage
- Type
- geen garage
Berging
- Type
- vrijstaand hout













































